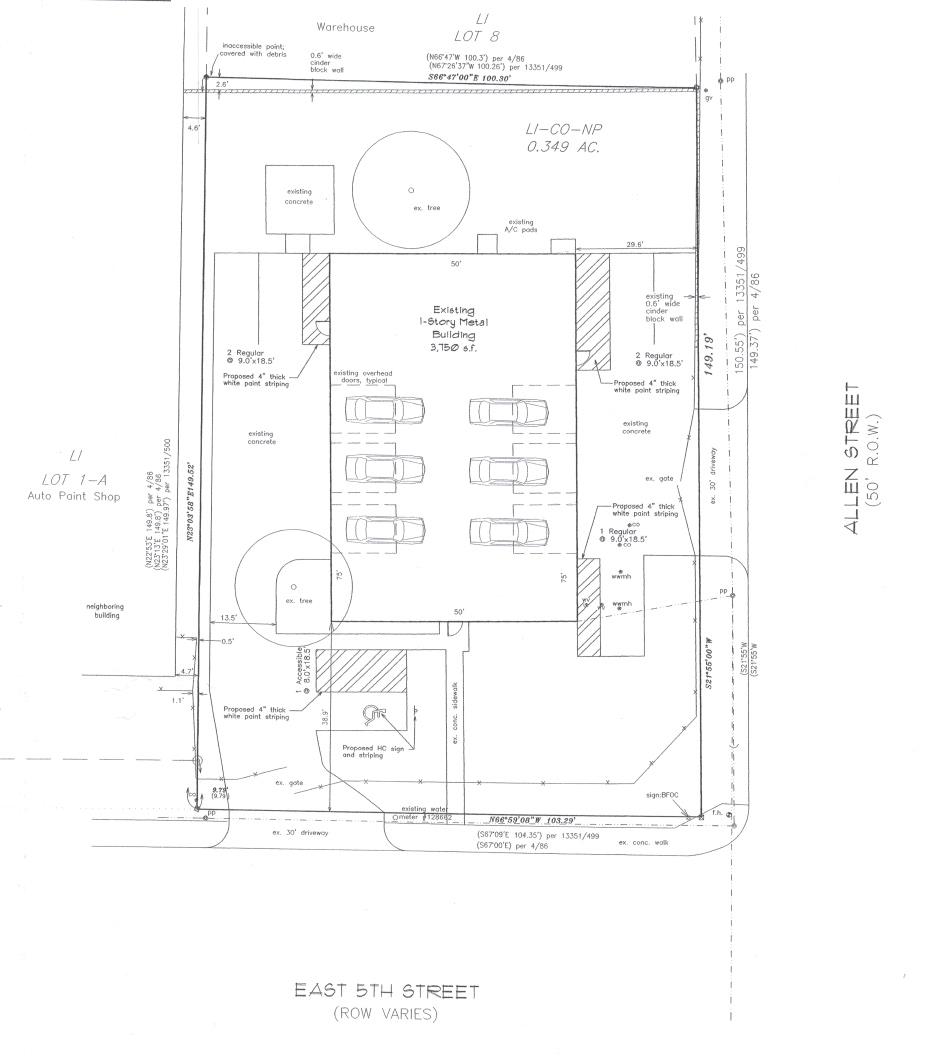
Located in the heart of East Austin, 3228 E 5th Street offers a rare opportunity to own an industrial-style property with exceptional visibility and access. This corner-lot site spans 15,246 square feet and features a 3,700-square-foot metal warehouse, currently operating as an auto repair shop. Zoned GR-MU-NP, the property allows for a wide range of commercial and mixed-use possibilities, making it ideal for investors, owner-users, or creative operators looking for flexibility and long-term potential in one of Austin’s most dynamic areas.
The building sits just minutes from Austin’s urban core—approximately 2.5 miles (about 8 minutes) to Downtown Austin, 2.5 miles (about 7 minutes) to Springdale General, and 6 miles (around 12 minutes) to Austin-Bergstrom International Airport. The location combines the energy of the East Side with convenient access to major roadways, making it highly accessible for business operations or customer traffic.
Surrounded by East Austin’s growing mix of industrial, creative, and culinary destinations, the property is steps away from local favorites like Pueblo Viejo and nearby coffee trucks such as Fleet Coffee’s mobile setup at Cosmic Saltillo—adding to the property’s authentic neighborhood charm and walkable vibe.
With its generous lot size, versatile zoning, and proximity to downtown, 3228 E 5th Street stands out as a prime East Austin property offering both utility and future development potential.
The building sits just minutes from Austin’s urban core—approximately 2.5 miles (about 8 minutes) to Downtown Austin, 2.5 miles (about 7 minutes) to Springdale General, and 6 miles (around 12 minutes) to Austin-Bergstrom International Airport. The location combines the energy of the East Side with convenient access to major roadways, making it highly accessible for business operations or customer traffic.
Surrounded by East Austin’s growing mix of industrial, creative, and culinary destinations, the property is steps away from local favorites like Pueblo Viejo and nearby coffee trucks such as Fleet Coffee’s mobile setup at Cosmic Saltillo—adding to the property’s authentic neighborhood charm and walkable vibe.
With its generous lot size, versatile zoning, and proximity to downtown, 3228 E 5th Street stands out as a prime East Austin property offering both utility and future development potential.
Property Details
Price:
$2,495,000
MLS #:
9355014
Status:
Active
Beds:
0
Baths:
0
Type:
Commercial
Subtype:
Office
Subdivision:
Division A
Listed Date:
Oct 29, 2025
Total Sq Ft:
3,700
Lot Size:
15,246 sqft / 0.35 acres (approx)
Year Built:
1980
See this Listing
Schools
Interior
Cooling
Wall/Window Unit(s)
Flooring
Concrete
Heating
None
Exterior
Other Structures
None
Parking Features
Additional Parking
Financial
Map
Community
- Address3228 E 5th ST Austin TX
- SubdivisionDivision A
- CityAustin
- CountyTravis
- Zip Code78702
Subdivisions in Austin
- .8809 AC OF LOT 1 JOSEPH JOHN TRACT
- ‘Southridge Sec 06
- 0000000
- 04 Flats Condo Amd
- 05CBD
- 05CEN
- 08 Hundred Banister Place
- 1
- 1010 W. 10th Condominiums
- 1100 BRASS STREET CONDOMINIUMS
- 1103 Cherico Street Condominiums
- 1106 W 22nd Street Condo
- 1113 Walton Ln Condominiums
- 1126 Linden Condos
- 1131 Mason Ave Condos
- 1139 1/2 Poquito Street Condos
- 1153 Webberville Site Condos
- 1191 Ridge Dr
- 1191 Ridge Drive
- 12 Oaks Subdivision
- 1204 WEST 51ST STREET CONDOMINIUMS
- 1206 Deloney Street Condominiu
- 1213 Delsie Drive Condo
- 12th At Maufrais Condo
- 12th Street Court Condo
- 1303 Harriet Court Condos
- 1305 Kinney Avenue Condos
- 1310 Choquette Drive Condos
- 1315 W 9th St Condos
- 1325-1327 Bonham Terrace Condos
- 13700 PANSY TRAIL CONDOMINIUMS UNT 1 PLU
- 1402 Braes Rdg Condos
- 1405 PEREZ STREET SITE CONDOMINIUMS
- 1406 Ulit Condos
- 1409 Sanchez Condo
- 1500 Summit Amd
- 1506 Payne Ave Condo
- 1510 West 6th Street Condo
- 1516 Treadwell Condo
- 1600 S 1st Street Condo
- 1601 Stassney
- 1603 Willow Condos
- 1621 Enfield Condo Amd
- 1705 Guadalupe
- 1706 Goodrich Condos
- 1715 Enfield Condominiums
- 1800 Loreto Drive Condos
- 1808 Riverview Condominium
- 1815 CULLEN CONDOMINIUMS
- 1900 Cerca at the Domain
- 1901 Berkeley Ave Condos
- 1912 Lightsey Condominiums
- 1C-Steiner Ranch Blvd
- 1se3-1se3
- 2000 Alegria Road Condos
- 2000 Lightsey Condo
- 2003 Karen Condos
- 2004 Pennsylvania Site Condos
- 201 West Mockingbird Lane Condo
- 2010 GOODRICH CONDOMINIUMS
- 2010 Goodrich Condos
- 2011 Haskell Condo
- 2012 Willow Condominiums
- 2013 Ashby Ave Condo Amd
- 2020 Congress Condo
- 2101 Montopolis Residential Co
- 2102 Eva Street Condos
- 2105 Brooklyn Condominiums
- 2114 Haskell Street Condominiums
- 2114 Haskell Street Site Condominiums
- 2115 Ann Arbor Condo
- 2200 Condo
- 2203 East 14th Condo
- 2203 Richcreek Condos
- 2206-2210 South Congress Condo
- 2207 Leon Street Condo
- 2209 East 18th Street Condos
- 2216 Lindell Ave Condos
- 2300 Hancock Drive Condo
- 2305 E 16th Condos
- 2307 East 2nd Street Condomini
- 2309 Pruett Street Condo
- 2409 Durwood Condos
- 2412 Thornton Condo
- 2414 E Mlk Condos
- 2421 S 5th Street Sub
- 2500 Southland Condos
- 2512 Wheless Condos
- 2800 Crest Ave Condo
- 2912 East 14th Condo
- 2912 Govalle Site Condos
- 2935 Moss Condo
- 3001 E 51st
- 30th Street Condominiums
- 3102 Garwood Street Condos
- 3201 5th Street Condo
- 3202 Clawson Condominiums
- 3214 Clawson Road Condo
- 3407 Banton Condo
- 3409 NEAL
- 3507 Westchester Ave Condo
- 360 Condominiums
- 360 Residential Condos
- 3RD STREET SITE CONDOMINIUMS
- 4 San Saba Condo
- 400 E 30th Street Condos
- 4005 Clawson Condos
- 402 Hlnd City Homes Condos
- 404 West Alpine Bldg 1
- 408 WEST ODELL STREET SITE CONDOMINIUMS
- 41 Waller Lofts
- 4101 Menchaca
- 4325 Banister Condos
- 44 East Ave
- 44 EAST AVE CONDIMINIUMS
- 44 East Ave Condominiums
- 44 East Ave Condos
- 44 East Ave. Condominiums
- 44 East Ave. Condos
- 44 East Avenue
- 44 East Avenue Condominiums
- 44 EAST CONDO
- 44 East Condominiums
- 4408 JINX CONDOMINIUMS
- 4420 Mount Vernon Condos
- 4612 Greenview Row Condo
- 48 East Condominiums
- 48 East Condos
- 4802 Gladeview Site Condos
- 4905 South Crest Drive
- 4th &
- 5001 Woodrow Ave Condominiu
- 5006 LOTT AVENUE SITE CONDOMINIUMS
- 5010 Rowena Condos
- 51 East
- 510 Blackson Condiminiums
- 510 Sacramento Drive Condos
- 52880000
- 5401 Joe Sayers Condo A
- 5403 Duval Street Site Condos
- 5412 McCandless Twnhms
- 5514 Ave H Condos
- 5703 Tura Lane Condos
- 58EAS
- 5th and West Building
- 600 Guadalupe Master Condo
- 6002 Ponca St Condo
- 604 The Amd
- 607 Montopolis Sub Lot 4
- 607 Terrell Hill Drive Condo
- 6204 Hickman Ave Condos
- 6210 Larch Terrace Condominiums
- 6902 CARVER SITE CONDOMINIUMS
- 6TH STREET BUSINESS
- 70 Rainey
- 70 Rainey Condominiums
- 70 Rainey Residences
- 70 Rainey Residences Condominiums
- 7008 MEADOR CONDOMINIUMS
- 705 E 49th Street Condo
- 708 Huntingdon Pl Condos
- 710 Condos
- 715 EAST 50TH STREET SUBDIVISION
- 7301 PROVIDENCE AVENUE SITE CONDOMINIUMS
- 7606 Providence Site Condos
- 7709 Mullen Condos
- 8005 Tisdale Drive Condos
- 8307 Bradford Edward Condominiums
- 8888 Tallwood Condo Amd
- 900 Banister Condo
- 900 Cherico Street Condominiums
- 900 S First St.
- 906 Linden Street Condos
- 908 Nueces Condos
- 909 Vargas Condominiums
- 911 Tillery Sub
- 921 East 51st Street Condominiums
- A0018 – Seaborn J Whatley Survey
- Ab & M Surv #143 Abs #2184
- Abbate
- Abode Of Snow Condo
- ABS 378 SUR 57 HOLTON W S ACR 10.043
- ABS 585 SUR 502 NUNEZ G ACR 3.680
- ABS 697 SUR 7 SPEAR G W BLK 15
- Acres West
- Adams Beaty & Moulton Surv
- Adams Beaty & Moulton Surv #37
- Adams David G
- Addison
- Addison Sec 1 Sub
- Addison Sec 2 Sub
- Addison Sec 3
- AGAVE
- Agave, 969, Meadows At Trinity Crossing Ph 01-B
- Aggie & Woodrow Condo
- Airdale
- Akoya Condo Amd
- Alamo Heights Sec 01
- Alamo Heights Sec 02
- Aldea Del Sol Condo
- Aldea Del Sol Condominiums
- Alder
- Alder Condo
- Aldridge Court
- Aldridge Place
- Alegria Condo Amd 1902
- Alicante
- Alicante Condo Twnhms Amd
- Alicante Condominiums
- Alicante Townhomes
- Allandale
- Allandale Condo Ass.
- Allandale Condos
- Allandale Estates Sec 01
- Allandale Estates Sec 04
- Allandale North Sec 01
- Allandale North Sec 02
- Allandale North Sec 03
- Allandale North Sec 06
- Allandale North/North Shoal Creek
- Allandale Park Sec 01
- Allandale Park Sec 02
- Allandale Park Sec 03
- Allandale Park Sec 04
- Allandale Park Sec 05
- Allandale Park Sec 06
- Allandale Park Sec 08
- Allandale Park Sec 09
- Allandale Place Sec 01
- Allandale Sec 01
- Allandale Sec 02
- Allandale Sec 03
- Allandale Sec 04
- Allandale Terrace
- Allandale Terrace Sec 02 Ph 04
- Allandale The
- Allandale West Sec 01
- Allandale West Sec 02
- Allandale West Sec 05
- Allandale West Sec 06
- Allen Terrace Sub
- ALLENDALE CONDOMINIUMS AMEND
- Allison Laura L Resub
- Alta Mira Sec 1 At Circle C Ra
- Alta Mira Sec 2 At Circle C Ra
- Alta Vista
- Alta Vista Resub
- Amarra
- Amarra Drive Ph 03
- Amber Oaks
- Amber Oaks Condos
- Anderson Alice
- Anderson Hill
- Anderson Hill 04
- Anderson Mill
- Anderson Mill Center Ph 03
- Anderson Mill E Estates
- Anderson Mill Estates
- Anderson Mill Estates Sec 01
- Anderson Mill Estates Sec 03
- Anderson Mill Village
- Anderson Mill Village 02
- Anderson Mill Village 15-A
- Anderson Mill Village 16
- Anderson Mill Village 20 Ph 02
- Anderson Mill Village South
- Andersons Resub
- Angelina+12th Condominiums
- Angus Valley Annex Sec 01
- Angus Valley Annex Sec 02
- Anthony W B
- Apache Shores
- Apache Shores 01 Instl
- APACHE SHORES FIRST INSTALLM
- Apache Shores Sec 02
- Apache Shores Sec 03 Amd
- Apache Shores Sec 04
- Apache Shores Sec 05
- Apache Shores Sec 06
- Apache Shores Sec 07
- Apache Shores Sec 3 Amended
- Apache Shores Sec 5
- Appaloosa Run
- Apple Tree Condominiums Amended
- APPLEGATE
- Aqua Monte
- Aqua Monte Sec 02
- Aqua Verde
- Arbolago
- Arboles Estates
- Arboles Terrace
- Arbor At Great Hills
- Arbor Ridge
- Arbor Ridge Condo Amd
- Arboretum Park Residential Sub Condo
- Arbors
- Arbors At Riverside Condo
- Arbors At Riverside Condo The
- Arbors The
- Arcadia Condo Amd
- Archer James B
- Arches Condominiums
- ARMER CROSSING CONDO
- Arrowhead Point 01
- Arrowwood Sec 02
- Arroyo Seco
- Ashdale Gardens Condo
- Ashton Green Condo
- Ashton Woods Condo
- Ashton Woods Condo Town Homes
- Attal Resub
- Austin Bluebonnet City Homes Condo
- Austin City Lofts Amd
- Austin Colony
- Austin Heights
- Austin Heights Amd
- Austin Heights Condo
- Austin Highlands Sec 01
- Austin Highlands Sec 03
- Austin Hills Sec 01
- Austin Lake Estates Resub
- Austin Lake Estates Sec 01
- Austin Lake Estates Sec 02
- Austin Lake Estates Sec 03
- Austin Lake Estates Section 1
- Austin Lake Hills Sec 01
- Austin Lake Hills Sec 02
- Austin Lake Hills Sec 03
- Austin Lake Hills Sec 03 Amd
- Austin Lake Hills Sec 2
- Austin Rivertree Condo
- Austin Star
- Austin’s Colony
- Austin’s Colony Ph V Sec 3
- AUSTIN’S COLONY PHS 2
- Austin’s Colony Sec 12
- AUSTIN’S COLONY SEC 8
- Austins Colony
- Austins Colony Ph 02
- Austins Colony Ph 03
- Austins Colony Ph 04
- Austins Colony Ph 05 Sec 01
- Austins Colony Ph 05 Sec 02
- Austins Colony Ph V Sec 3
- Austins Colony Phs 2
- Austins Colony Sec 6A
- Austins Colony Sec 6b
- Austins Colony Sec 7a
- Austins Colony Sec 7b
- Austins Colony Sec 8
- Austins Colony Sec 9
- Austonian Condo Community
- Avalon
- Avalon A
- Avalon Cherrywood
- Avana
- Avana Ph 1 Sec 2
- Avana Ph 2 Sec 1
- Avana Ph 3
- Avana Ph One Sec Six
- Avana Ph Two Sec Two
- Avenel At Hyde Park Condo
- Avent R G 03 & 07ac Ofland Olt
- Avenue A Condo
- Avery Brookside Ph 01
- Avery Brookside Ph 02
- AVERY COMMONS
- Avery Estates & Golf Club @ Avery Ranch
- Avery Morrison Sub
- Avery Ranch
- Avery Ranch Creekside Morrison Sub
- Avery Ranch East
- Avery Ranch East Ph 01
- Avery Ranch East Ph 01 Amd
- Avery Ranch East Ph 02 Sec 02
- Avery Ranch East Ph 02 Sec 03
- Avery Ranch East Ph 02 Sec 04
- Avery Ranch East Ph 02 Sec 05
- AVERY RANCH EAST PH 1
- Avery Ranch Far
- Avery Ranch Far West
- Avery Ranch Far West Ph 01 Sec 02
- Avery Ranch Far West Ph 01 Sec 03
- Avery Ranch Far West Ph 01 Sec 04
- Avery Ranch Far West Ph 01 Sec 05
- Avery Ranch Far West Ph 02 Sec 01
- Avery Ranch Far West Ph 02 Sec 02
- Avery Ranch Far West Ph 02 Sec 03
- Avery Ranch Far West Ph 02 Sec 04
- Avery Ranch Far West Ph 03 Sec 02
- AVERY RANCH FAR WEST PH 2 SEC 3
- Avery Ranch Far West Ph 3 Sec
- Avery Ranch Far West Ph Sec 01
- Avery Ranch Far West Ph Sec 02
- AVERY RANCH FAR WEST,
- Avery Ranch Garden Homes Pud
- AVERY RANCH GLENFIELD
- Avery Ranch Ingleside
- Avery Ranch North Sec 01 Pud Amd
- Avery Ranch North Sec 02 Am
- Avery Ranch North Sec 02 Pud Amd
- AVERY RANCH NORTH SEC 2 PUD AMD
- Avery Ranch Pud Garden Homes
- Avery Ranch South Sec 1 Ph 1 resub Pts B
- Avery Ranch West Condo
- Avery Ranch West Ph 01
- Avery Ranch West Ph 02
- Avery Ranch West Ph 1
- Avery South
- Avery South Sec 01 Ph 02
- Avery South Sec 02 Ph 01
- Avery South Sec 02 Ph 03
- Avery South Sec 02 Ph 06
- Avery Station Sction 1A Ph 1
- Avery Station Sec 1A Ph 1
- Avery Station Sec Ia Ph 1
- Avi Lacrosse Condos
- Aviara Condo
- Avion Park Condos Bldg 4
- Avon Heights Sec 05
- Avon Heights Sec 08
- AW0018 ALLEN
- Axiom Condos
- Axiom East
- Axiom East Condominiums
- B K Stewart
- Back Moon Amd
- Bahn’s Subdivision
- Bailey Oaks
- Bailey Oaks Sub
- Baker
- Baker Sub Resub Of Lt 4 Blk
- BAKER SUBDIVISION
- Balcones Commons Offices Amd
- Balcones Oaks Sec 02
- Balcones Park 01
- Balcones Park Add Sec 02
- Balcones Park Add Sec 05
- Balcones Park Edgemont Sec 02
- Balcones Park Sec 03
- Balcones Park Sec 08
- Balcones Place Condo Amd
- Balcones Terrace
- Balcones Towers Condo
- Balcones Village
- Balcones Village Garden Homes
- Balcones Village Sec 02
- Balcones Village Sec 03 Ph A
- Balcones Village Sec 04
- Balcones Village Sec 06
- Balcones Village Sec 07
- Balcones Village Sec 09
- Balcones Village Sec 10
- Balcones Village Sec 11
- Balcones Vlg Sec 6
- Balcones West
- Balcones West Sec 02
- Balcones Woods
- Balcones Woods Sec 01
- Balcones Woods Sec 02
- Balcones Woods Sec 03a
- BALCONES WOODS SEC 3B
- Baldwins Point Resub
- Banister Acres
- Banister Acres Condo Am
- Banister Acres Sec 02
- Banister Comm Area
- Banister Heights
- Bank of the Hills Office Park
- Bannockburn
- Bar S Ranch 02
- Barker Ranch At Shady Hollow
- Barr 02-B
- Barrington Oaks
- Barrington Oaks Sec 01
- Barrington Oaks Sec 02
- Barrington Oaks Sec 03
- Barrington Oaks Sec 12
- Barrington Oaks Sec 9
- Barrows Lakeside Add
- Barstow Court, Circle C
- Barton Bend
- Barton Creek
- Barton Creek Abc West Ph 01
- Barton Creek Abc West Ph 02
- Barton Creek Highlands Sec 01a
- Barton Creek Ph 04 Sec H
- Barton Creek Preserve
- Barton Creek Preserve Ph 03
- Barton Creek Sec G Ph 01
- Barton Creek SEC G PHS 2
- Barton Creek Sec J Ph 02
- Barton Creek Sec M
- Barton Creek Twnhms Amd
- Barton Creek West
- Barton Heights
- Barton Heights A
- Barton Heights B
- Barton Heights B Annex
- Barton Hills
- Barton Hills Sec 01
- Barton Hills Sec 02
- Barton Hills Sec 03
- Barton Hills Sec 03A
- Barton Hills Sec 05
- Barton Hills Sec 07
- Barton Hills Sec 3
- Barton Hills Section 02
- Barton Hills- Horseshoe Bend Sec
- Barton Hills- Horseshoe Bend Section
- Barton Hollow
- Barton Hollow Condo Amd
- Barton Oaks
- Barton Oaks Sec 03
- Barton Skyline Garden Homes
- Barton Spgs Heights
- Barton Spgs Park
- Barton Springs Estates
- Barton Terrace Condo
- Barton Terrace Sec 01
- Barton Terrace Sec 03
- Barton Terrace Sec 04
- Barton Terrace Sec 06
- Barton View Sec 04
- Barton View Sec 3 Barton View Sec 2 Re
- Barton View Sec 3 & Barton Vie
- Barton Village Sec 02
- Barton Village Sec 03
- Bartonplace Condo
- Battle Bend Spgs Sec 01-A
- Battle Bend Spgs Sec 04
- Bauerie Jacob Add
- Bauerle Ranch
- Bawcom
- Bayview Acres
- Beacon Ridge Twnhms Condo
- Beaconridge
- Beaconridge 02 Amd
- Beaconridge 03
- Beaconridge 04-A
- Beaconridge 04-B
- Beaconridge V
- Beall W O Add
- Bear Creek Estates Sec Two
- Bear Creek Oaks
- Bear Creek Oaks Sec 2
- Bear Creek Oaks Sec 3
- Beau Site
- Bebys Ranch 01
- Beckers Gus F
- Beckett Meadows
- Beckett Meadows Sec 01
- Beckett Meadows Sec 01*
- Beckett Place
- Bee Cave Woods
- Bee Caves Vista
- Bee Caves Vistas
- Bee Caves West
- Bee Creek Hills
- Bee Creek Hills Add
- Beecave Woods
- Beecave Woods Sec 01
- Beecave Woods Sec 02-A
- Beecave Woods Sec 02-Aa
- Beecave Woods Sec 03
- Beecave Woods Sec 03 A
- Beecave Woods Sec 04
- BEECAVE WOODS SEC 1
- BEECAVE WOODS SEC 3
- Bel Air Condo Amd
- Belhaven Sec 01
- Belhaven Sec 02
- Bell William Resub
- Bella Colinas Sec 2
- Bella Colinas Sec 7, 8, & 9
- Bella Colinas Sec 7,8,& 9
- Bella Colinas Secs 7-9
- Bella Fortuna
- Bella Fortuna Ph 1
- Bella Lago on Lake Austin
- Bella Montagna
- Bella Montagna Estates
- Bella Montagna, Lakeway, Round Mountain Estates 02
- Bella Montagna, Round Mountain Estates 02
- Bella Terra Condo Amd
- Bella Terra Condo Ph 02 Amd
- Bellaire
- Bellaire Heights Sec 01
- Bellingham
- Bellingham Mdws Sec 2
- Bellingham Mdws Sec 3
- Bellingham Mdws Sec 4
- Bellingham Meadow
- BELLINGHAM MEADOWS
- Bellingham Meadows Ph Ii Sec 3
- Bellingham Meadows Sec 1
- Bellingham Meadows Sec 3
- Bello Vista
- Bellvue Park
- Belterra
- Belterra Ph 03 Sec 11b
- Belterra Ph 1 Sec 3A
- Belterra Ph 1 Sec 5A
- Belterra Ph 1 Sec 8
- Belterra Ph 2 Sec 4
- Belterra Ph 2 Sec 5B
- Belterra Ph 3 Sec 11A
- Belterra Ph 3 Sec 11B
- Belterra Ph 4 Sec 12a
- Belterra Ph 4 Sec 12B
- Belterra Ph 4 Sec 13
- Belterra Ph 4 Sec 14
- Belterra Ph 4 Sec 19B
- Belterra Ph 5 Sec 10
- Belterra Ph II Sec 2
- Belterra Ph II Sec 3B
- Belterra Ph Ii Sec 9B
- Belterra Sec 15
- Belterra Sec 16
- Belterra Sec 21-1
- Belvedere
- Belvedere Ph 01
- Belvedere Ph 02
- Belvedere Ph V Rev Lt 28 Bl D
- Belvedere Ph Vi
- Belvedere Ph Vii-A
- Belvedere Ph Vii-B
- Benchmark Condo
- Benchmark Condo Amd
- BENCHMARK CONDOMINIUMS AMEND
- Benchmark Condominiums Amended
- Bend At Nuckols Crossing Ph 01
- BEND AT NUCKOLS CROSSING PHS
- Bend Condos
- Bensons
- Bergman Valley View
- Bergstrom Add
- Biddle
- Big Country Annex
- Big Country Sec 1
- Big Country Sec 2
- Big Country Sec 5
- Big Country Sec 8
- Bills Add Sec 01
- Birdlip
- Bk Stewart Surv 84
- Black A K 01
- Black A K 02
- Blackwoods Sub
- Block 065 Original City
- Block 079 Original City
- Block 106 Original City
- Block 111 Original City
- Block 129 Original City
- Block 131 Original City
- Block 153 Original City
- Block 177 Original City
- Blue Bluff Sub
- Blue Bonnet Hills
- Bluebonnet Lofts
- Bluebonnet Lofts Condominiums
- Bluff Side Add
- Bluff View
- Bluffington Sec 01
- Bluffington Sec 02
- Bluffington Sec 02 02 Amd
- Bluffs Great Hills
- Bluffs Lost Creek
- BLUFFS SEC 1 AT THE VILLAGES
- Bluffs University Hills Sec 01
- Blumie Condominiums
- Boat Shop Dev
- Bobcat Ridge
- Boes C J Resub Buddington
- Boggy Creek Add Amd
- Bon Air Knolls
- Boswell W A
- Bouldin
- Bouldin Add North Ext
- Bouldin Court Condos
- Bouldin Creek
- Bouldin Creek Condo Amd
- BOULDIN CREEK CONDOMINIUMS A
- Bouldin D W
- Bouldin J E Estate
- Bouldin James E Add
- BOULDIN JAMES E ADDN
- Bouldin Oaks 02
- Bouldin South ext
- Bouldin Square Condo Amd
- BOULDIN SQUARE CONDOMINIUMS
- Boulevard A Condo Amd
- Boulevard Heights
- Bower Hefly Add
- Bowling Green
- Bradfield Bend
- Bradley Addn
- Bradshaw Crossing
- Bradshaw Crossing Sec 03
- Bradshaw Crossing Sub
- Bradshaw Crossing Sub Sec 11
- Bradshaw Crossing Sub Sec 7
- Bradshaw Crossing Sub Sec 9
- Bradshaw Crossings
- Bradshaw Xing Sec 05
- Bradshaw Xing Sub Sec 12
- Braes Ridge
- Brandywine Condo Amd
- Braswell
- Bratton Hill
- Bratton Hill 40’s
- Bratton Hill Condo
- Bratton Hill Sec 02
- Bratton Hill Sec 03
- BRATTON PARK
- Bratton Park Sec 01
- Bratton Park Sec 02
- Brazos Lofts Condo Amd
- Brazos Place Condo Amd
- Breakwater
- BREAKWATER SUBD
- Breedlove Add
- Breen SUBD
- Breezy Hollow Add Sec 02
- BRENNERS CORNER
- Brentwood
- Brentwood 56 Condo Amd
- Brentwood Place
- Brentwood Villas
- Brentwood Villas Condominiums
- Brentwood Villas Condos
- Briarpatch
- Bridges At Bear Creek
- Bridges At Bear Creek Ph 1 SE
- Bridges At Bear Creek Ph 2 SE
- Bridges Of Bear Creek Ph 1 Se
- Bridges On The Park
- Brigadoon Townhomes
- Brigadoon Townhomes Ph02
- Brigadoon Twnhms Ph 01
- Brigadoon Twnhms Ph 03
- Brigadoon Twnhms Ph 04
- Brill Arno 03
- Brinwood Sec 01
- Brinwood Sec 02
- Brinwood Sec 03
- Brinwood Sec 04
- Broadacres
- Brodie Heights Condo Amd
- BRODIE HEIGHTS CONDOMINIUMS
- Brodie Spgs 02 Ph 02
- Brook
- Brook Hollow Add Sec 01
- Brook Meadow
- Brooks Hollow Resub
- Brooksdale
- Brooksfield
- Brookside Estates
- Brookswood
- Brown Bldg Lofts Condo Amd
- Brown Herman
- Brown Herman Add
- Brown Herman Add 02 Sec 05
- Brown J S
- Brown Leander Add
- Brown M L Add
- Brushy Creek Village
- Brushy Creek Village Pud
- Brushy Creek Village Sec 02
- Brushy Crk Village Sec 02
- Bruton Spgs
- Bryker Woods
- brykerwoods
- Brykerwoods Annex
- Brykerwoods C
- Brykerwoods E
- Brykerwoods F
- Buckingham Estates Ph 03 Sec 03-A
- Buckingham Estates Ph 03 Sec 05
- Buckingham Estates Ph 04 Sec A
- Buckingham Estates Ph 04 Sec B
- Buckingham Estates Ph 04 Sec C
- Buckingham Estates Ph 3 Sec 3
- Buckingham Estates Ph 3 Sec 4
- Buckingham Estates Ph Iii Sec
- Buckingham Estates Sec 02
- Buckingham Estates Sec 04
- Buckingham Meadows
- Buckingham Place Comm Area
- Buckingham Place Sec 01
- Buckingham Place Sec 02
- Buckingham Place Sec 03
- Buckingham Place Sec 05
- Buckingham Ridge
- Buckingham Ridge Sec 04
- Buckingham Ridge Sec 05
- BUCKINGHAM RIDGE SEC 2
- BUCKINGHAM RIDGE SEC 4
- Buckingham Ridge Sec 5
- Buckskin Trails
- Buddington
- Buddington Subd
- Buena Vista
- Buena Vista Condo
- Buffalo Gap
- Buffalo Gap Lakeway
- Buffington
- Building 1 The Public Condos
- Bull Creek Bluff Estates
- Bull Creek Ranch Condo Amd
- Bull Mountain Ph 01
- Bull Mountain Ph 04 Sec 01
- Bungalows
- Bungalows At The Forty Acres C
- Bungalows At The Forty Acres Condo
- Buratti & Cerico
- Buratti & Cherico
- Burba Ranch
- BURLESON
- Burleson Condominiums
- Burleson Road Heights
- Burnet 64 Condominiums
- Burnet Heights
- Burnet Road Terrace Resub
- Burns
- Burns Series 01
- Burt & Davis
- Burton & Mead
- Bush Ranch
- Bush Ranch Ph 1 Rev
- butter cup
- Byrnes James
- Byrnes James Subd
- C
- C D N Add 02
- C P L M A
- C V C Jefferson Add
- C W Hudson Sur 43
- Caldwell T J
- Calera Court Condo Amd
- Calvert Add
- Cambridge Condo Amd
- Camelot
- Camelot Sec 02 Ph 02
- Camelot Sec 03
- Cameron Acres
- Cameron Park Sec 02
- Cameron Park Sec 03
- Campion
- Cannizzo Sec 03
- Cannon Ridge Condo Amd
- Cannon Ridge Condominium Amended The
- Cannon W
- Canopy at West Gate Grove
- CANOPY AT WESTGATE GROVE CONDOMINIUMS
- Canopy Condo
- Canopy of Westgate Grove Condominium
- Canopy/Westgate Grove Condos
- Canterbury Commons Condo
- Canterbury Square
- Canterbury Trails
- Canterbury Trails Sec 04
- CANTERBURY TRAILS SEC IV
- CANTERBURY TRAILS SEC V
- Canyon Creek
- Canyon Creek Sec 01
- Canyon Creek Sec 11
- Canyon Creek Sec 17B
- Canyon Creek Sec 17c
- Canyon Creek Sec 18
- Canyon Creek Sec 19a
- Canyon Creek Sec 20
- CANYON CREEK SEC 21
- Canyon Creek Sec 22
- Canyon Creek Sec 24
- Canyon Creek Sec 26
- Canyon Creek Sec 28
- Canyon Creek Sec 31
- Canyon Mesa Ph 01
- Canyon Ridge Ph A Sec 02
- Canyon Rim
- Canyon View Estates
- Canyons At Lake Travis
- Canyonside at Falconhead West
- Canyonside/Falconhead West
- Canyonside/Falconhead West Con
- Capital Heights
- Capital Heights / Bouldin
- Capital View Center Condo Amd
- Capitol View Estates
- Cardinal Hills
- Cardinal Hills Estates
- Cardinal Hills Estates / Maravilla
- Cardinal Hills Estates Unit 11
- Cardinal Hills Estates Unit 12
- Cardinal Hills Estates Unit 14
- Cardinal Hills Estates Unit 15
- Cardinal Hills Estates Unit 16
- Cardinal Hills Unit 01
- Cardinal Hills Unit 02
- Cardinal Hills Unit 03
- Cardinal Hills Unit 04
- Cardinal Hills Unit 05
- Cardinal Hills Unit 06
- Cardinal Hills Unit 07
- Cardinal Hills Unit 5 Amd
- Cardinal Lane Condo
- Carlson Myrtle M
- Carnarvon Lane Condo Amd
- CARNARVON LANE CONDOMINIUMS
- Carol Oaks
- Carrell Oaks Sec 02
- Carrells Corner
- CARRIAGE PARK
- Carriage Park Condo
- Carriage Park Condos
- Carrington
- CARRINGTON SUBD
- Carrolls L W
- Cartwright
- Casa Verde Condominiums
- Cascada Condo Amd
- Cascade Condominium
- Cascade Condominiums
- Cascade Condos
- Cascades at Onion Creek
- Cascades/Onion Crk East Ph 1
- Cascades/Onion Crk East Ph 2
- Castile Road Condo
- Castle East Sub
- Castle Hill Terrace Condo Amd
- Castle Ridge Condo
- CASTLEWOOD FOREST
- Castlewood Forest Annex 1457
- Castlewood Forest Sec 01
- Castlewood Forest Sec 03
- Castlewood Forest Sec 06
- Castlewood Forest Sec 07
- Castlewood Forest Sec 09
- Castlewood Forest Sec 7
- Caswell Lofts Condo
- Cat Mountain North Sec 1-A
- Cat Mountain Villas
- Cat Mountain Villas Sec 01
- Cat Mountain Villas Sec 02-A
- CATALPA PLACE CONDOMINIUMS
- Cavallo Park
- Cayena Creekside
- Ccss Sec 01
- Cearley Community Sub
- Cebar Ranch Lakeview Acres
- Cedar Rdg Estates Sec 4
- Cedar Valley
- Celia’s Court
- Celias Court
- Celias Court Condos
- Celias Court/908 Nueces Condo
- Ceniza Condo
- Centennial Condo
- Centennial Condo Rev 1997
- CENTENNIAL CONDOMINIUMS AMEN
- Central East
- Central Insurance Add
- CENTRAL TEXAS ARCHERY COMMERCIAL
- Century Condo
- CENTURY PARK
- Century Park Condo
- Cerca at The Domain Condominiums
- Chalmers Add
- Chambord Condo Rev 1999
- Chamonix Condo Amd
- CHAMONIX CONDOMINIUMS
- CHAMONIX CONDOMINIUMS AMENDE
- Champion 360 Subd
- Champion City Park West
- Champions Forest
- Champions Forest Sec 02
- Champions of Davenport
- Chaparral Crossing Condo Amd
- Chaparral Xing Condos
- Chapman Doyle
- Chapote Sub
- Chappell Hill
- Chasewood Add
- Cheery Creek Sec 09-A
- Chelsea Sub
- Chelsea Subd Lot 1
- Chelsea Subd Lot 3
- Cherico 01
- Cherico 02
- Chernosky
- Chernosky 06
- Chernosky 08
- Chernosky 09
- Chernosky 10
- Chernosky 11
- Chernosky 12
- Chernosky 14
- Chernosky 15
- Chernosky 16
- Chernosky 17
- Chernosky M E
- Chernosky No 12
- Chernosky No 15*
- Chernosky no. 15
- Chernosky Sub 9 Blk 1 Am
- Cherry Creek
- Cherry Creek 02
- Cherry Creek 04
- Cherry Creek Comm Iii-G
- Cherry Creek Comm Iii-K
- Cherry Creek East
- Cherry Creek Ph 02 Sec 01
- Cherry Creek Ph 02 Sec 02
- Cherry Creek Ph 02 Sec 03
- Cherry Creek Ph 02 Sec 04
- Cherry Creek Ph 03 Sec 02
- Cherry Creek Ph 03 Sec 04
- Cherry Creek Ph 04 Sec 01 Resub
- Cherry Creek Ph 04 Sec 02
- Cherry Creek Ph 06 Sec 01
- Cherry Creek Ph 06 Sec 02 Amd
- Cherry Creek Ph 06 Sec 03
- Cherry Creek Ph 07 Sec 01 Amd
- Cherry Creek Ph 07 Sec 02
- Cherry Creek Ph 07 Sec 03
- Cherry Creek Ph 07 Sec 05
- Cherry Creek Ph 07 Sec 06
- Cherry Creek Ph 08 Sec 02-A
- Cherry Creek Ph 08 Sec 04
- Cherry Creek Ph 08 Sec 05-A
- Cherry Creek Ph 08 Sec 06
- Cherry Creek Ph Iv Sec 1 Resu
- Cherry Creek Ph V Sec 01
- Cherry Creek Phs 7 Sec 5
- CHERRY CREEK PHS II SEC 3
- CHERRY CREEK PHS VI SEC 3
- Cherry Creek Phs Vii Sec 1-a
- Cherry Creek Sec 09-A
- Cherry Creek Sec 10-A
- Cherry Creek Sec 14
- Cherry Creek Sec 16
- CHERRY CREEK SEC 9 A
- Cherry Creek Sec 9-a
- Cherry Hill Condos
- Cherry Hill Park Phs ll
- Cherry Hills
- Cherry Lane City Homes Condo
- Cherry Meadows
- Cherry Mountain Ph 02
- Cherrylawn Sec 02
- Cherrylawn Sec 03
- Cherrylawn Sec 04 Resub
- Cherrylawn Sec 06
- Cherrylawn Sec 5
- Cherrywood
- Cherrywood Annex
- Chesnut
- Chestnut Commons
- Chestnut Commons A Condo
- Chestnut Place
- Chestnut Place Condo Amd
- Chestnut Square Condo
- Chimney Corners Twnhs
- Chimney Hill Ph 02 Sec 01
- Chimney Hills North
- Chimney Oaks Twnhs
- Chimneyhill 01 Instl
- Christopher Condo Homes
- Christopher Condominium Homes
- Chunn
- Cima Oaks Condo Ph I
- Cinnamon Hollow Sec 02 Amd
- Cinnamon Ridge
- Cinnamon Ridge 01-A
- CIRCL C RANCH, CIRCLE, AVANA
- Circle C
- Circle C Avana
- Circle C Golf Estates Ph 02
- Circle C Hielscher Sec 07
- Circle C Phs B Sec 21
- Circle C Ranch
- Circle C Ranch – Hielscher Sec 08
- Circle C Ranch – Hielscher Sec 12
- CIRCLE C RANCH , Hielscher Sec 12
- Circle C Ranch at Avana
- Circle C Ranch North
- Circle C Ranch Ph A Sec 01
- Circle C Ranch Ph A Sec 02
- Circle C Ranch Ph A Sec 05
- Circle C Ranch Ph A Sec 07
- Circle C Ranch Ph B Sec 02
- Circle C Ranch Ph B Sec 03
- Circle C Ranch Ph B Sec 10
- Circle C Ranch Ph B Sec 11
- Circle C Ranch Ph B Sec 13
- Circle C Ranch Ph B Sec 15
- Circle C Ranch Ph B Sec 17
- Circle C Ranch Ph B Sec 18
- Circle C Ranch Ph B Sec 20-A
- Circle C Ranch Ph B Sec 3 Rep
- Circle C Ranch Ph C Sec 02
- Circle C Ranch Ph C Sec 05-A
- Circle C Ranch Ph C Sec 05-B
- Circle C Ranch Ph C Sec 08
- Circle C Ranch Ph C Sec 08-A
- Circle C Ranch Ph C Sec 08-B
- CIRCLE C RANCH PHS A SEC 1
- CIRCLE C RANCH PHS B SEC 12
- Circle C Ranch Phs B Sec 16
- CIRCLE C RANCH PHS B SEC 17
- Circle S Ridge Sec 01
- City Scene Apartments
- City Views At Hart Condo
- City/Austin
- City/Austin Div B
- Claircrest Add Sec 01
- Clark C
- Clarksville
- Claus Sjoberg Farm
- Clay Ave Condo 02
- CLAY CONDOMINIUMS
- Clear Creek Add
- Clear Creek Addition
- Clear Creek Addition Sec 2
- Click Acres
- Cliff Over Lake Austin 02
- Cloverleaf
- Coachlight Condo Ph I-Iii
- Coldwater Condo Amd
- Coleto Condominiums
- Colina Vista Condo Amd
- Collay Henry Home Tr Amd
- College Court
- College Heights Add
- Collin William M
- Collinwood West Sec 01
- Collinwood West Sec Ii-A
- Collinwood West Sec Ii-C
- Colonial Hills Sec 01
- Colonial Hills Sec 03
- Colonial Park Amd
- Colonial Place Amd
- Colonial Trails Sec 01
- Colony Meadows Sec 01
- Colony Meadows Sec 02
- Colony North Sec 03
- Colony Park Sec 01 Ph 01
- Colony Park Sec 01 Ph 02
- Colony Park Sec 01 Ph 04-A
- COLONY PARK SEC 1 PHS 4 A
- COLORADO CROSSING
- Colorado Crossing 02 Sec 01
- Colorado Crossing 02 Sec 04
- Colorado Crossing 03 Sec 05
- Colorado Crossing III Sec 8
- Colorado Crossing Iv Sec 3
- Colorado Crossing IV Sec 6-B
- Colorado East One-A
- Colorado Hills Estates Sec 02
- Colorado Hills Estates Sec 06
- Colorado Hills Estates Sec 7 A
- Colton Bluff Ph 1
- Columbia Oaks Amd 1981
- Columbia Oaks Condo
- COLUMBIA SQUARE CONDOMINIUMS
- Comanche Add
- Comanche Canyon Ranch
- Comanche Canyon Ranch Sec 01
- Comanche Pass
- Comanche Point 02
- Comanche Trail 02
- Comanche Trail 03
- Comanche Trail 03 Resub
- Comanche Trail Estates
- Comanche Trail Estates Sec 01
- Comer Add
- Commons At Avery Ranch Condo
- Commons Ford Canyon
- Community Fairview
- Community Fairview Sec 01
- Community Fairview Sec 04
- Community of Fairview
- Complex
- Concord Village Condo Sonesta West Sec 01a B
- Condo
- Condo: Unit A Anthony W B
- Condominium De Saligny Amd
- CONDOMINIUMS AT PARKER RANCH
- Condos with amenities
- Congress Lofts at St Elmo
- Congress Lofts at St. Elmo
- Congress Lofts Condominiums
- Congress Park
- Connelly W P
- Conners Add
- Convenient Courts
- Convict Hill
- Convict Hill Sec 02
- Cook Gerald T Sec 01
- Cooper Oaks
- Cooper Oaks Sec 01
- Cooper Oaks Sec 01-A
- Cooper Oaks Sec 02
- Cooper Oaks Sec 02-A
- Cooper Oaks Sec 2
- Cooper Villas Condo
- Cooper Villas Condo Bldg 100
- Cooper Villas Condominium
- Cooper’s Square
- Coopers Square Condos
- Copperfield
- Copperfield Sec 01 Ph C
- Copperfield Sec 01 Ph D
- Copperfield Sec 01 Ph E
- Copperfield Sec 02-A Amd
- Copperfield Sec 02-B Amd
- Copperfield Sec 02-C
- Copperfield Sec 02-D
- Copperfield Sec 03-A
- Copperfield Sec 03-C
- COPPERFIELD SEC 2 B AMENDED
- COPPERFIELD SEC 2-A AMENDED PLAT
- COPPERFIELD SEC 3 C
- COPPERFIELD TOWNHOMES PHS 3
- Copperfield Twnhms Ph 01 Amd
- Copperfield Twnhms Ph 02
- Copperfield Twnhms Ph 03
- COPPERSTONE
- COPPERSTONE CONDOMINIUMS
- Coppertree Condo Ph 03
- Coppertree Condo Ph 04
- Coppertree Condo PH 4
- Coppertree Condo Ph I
- Coppertree Condo Ph Vamended
- Coronado Hills Sec 01
- Coronado Hills Sec 03
- Costa Bella
- Costa Bella Sec 02
- Cottage Court Condo Amd
- Cottages at Beaver Creek
- Cottages at Belterra Villages
- Cottages at Lake Creek
- Cottages At Lake Creek Condo
- Cottages At Spillman Ridge Con
- Cottages On Duval Condo
- Cottages/Beaver Crk Ph 2
- Cottonwood Condo
- Council Ridge Condominia Amd
- Country Air Sec 01
- Country Club Gardens Sec 03
- Country Club Gardens Sec 04
- Country Club Heights
- Country Club Lawns
- Country Club Terrace
- Countryside Sec 01
- Courtlandt Place Iii-A
- Courtyard At Gaines Ranch
- Courtyard At Preserve Condo
- Courtyard At Preserve Condo T
- Courtyard Condo Amd
- Courtyard Hms/Cobblestone Ph 07
- Courtyard Homes At Anderson Oaks Condo Ph 03
- Courtyard Homes At Cobblestone Condo Ph 05
- Courtyard Ph 01
- Courtyard Ph 02
- Courtyard Ph 03-A
- Courtyard Ph 03-B
- Courtyard Ph 06
- Courtyards At Onion Creek Condo
- COVE CONDIMINIUMS
- Coventry Place
- Covered Bridge
- Covered Bridge Sec 02
- Covered Bridge Sec 03
- Covered Bridge Sec 04
- Covered Bridge Sec 05
- Covered Bridge Sec 06
- Covered Bridge Whitecrowe Sub
- Craigwood Sec 01
- Craigwood Sec 02
- Crape Myrtle
- Creedmoor
- Creedmoor Add 01
- Creek Bend Condo Amd
- Creek Bend Sec 04
- Creek Bend South Sec 01
- Creek Ridge
- Creeks Edge
- Creekside
- Creekside at Estancia
- Creekside At Flint Rock
- Creekside at Pioneer Crossing West
- Creekside Homes Condo
- Creekside Ph I
- Creekside Terrace Condo
- Creekside/Pioneer Xing West Co
- Crest Haven Addition
- Crest Hills Sec 01
- Crestview
- Crestview Add Sec 01
- Crestview Add Sec 03
- Crestview Add Sec 04
- Crestview Add Sec 05
- Crestview Add Sec 06
- Crestview Add Sec 07
- Crestview Add Sec 08
- Crestview Add Sec 09
- Crestview Add Sec 1 Resub Of
- Crestview Add Sec 10
- Crestview Add Sec 12
- Crestview Addn
- Crestview Amd
- Crestview Sec 02
- CRESTVIEW SEC 2
- Crestview Sec 2 Resub Of Pt Of
- Crestview Station
- Crestview Station Ph 1
- Crestview Station Ph 5
- Crestview Station Resub Of Lt
- Crestview Townhomes
- Crockett Heights Sec 01
- Croix Condo Amd
- Croix Condo Amended
- Croslin Court
- Crossing At Bouldin Creek The
- Crossing at Onion Creek
- Crossing At Onion Creek Sec 01
- Crossing At Onion Creek Sec 02
- Crossing At Onion Creek Sec 03&4 Amd
- Crossing At Onion Creek Sec 05
- Crossing At Onion Creek Sec 2
- Crossing At Onion Creek Sec 3&
- Crossing At Onion Creek Sec 3&4
- Crossing Gardenhomes II
- Crossing Gardenhomes Ii The
- Crosswind, Hidden Hills
- Crown Ridge Village
- Crown Ridge Village Sec 01
- Crows Sub Resub Lt 6& Pt Lt 7
- Crystal Creek
- Crystal Mountain At Barton Cre
- Crystal Mountain At Barton Creek Sec 01
- Crystalbrook Sec 01
- CUELLAR SUSIE & MARTIN SUBD
- Cullen Ave Condo
- Curtis Missie Add
- Cypress Ridge
- D & J Properties
- Daisy Wood Dos
- Damon A
- Dan Jean Oaks
- DAN JEAN OAKS SUBD
- Danbury Square
- Danbury Square Condo 1302
- Dancy Add
- Dancy Addn
- Davenport Ranch
- Davenport Ranch Ph 01 Sec 01
- Davenport Ranch Ph 01 Sec 03
- Davenport Ranch Ph 02 Sec 01
- Davenport Ranch Ph 03 Sec 01
- Davenport Ranch Ph 03 Sec 03
- Davenport Ranch Ph 03 Sec 04
- Davenport Ranch Ph 03 Sec 05
- Davenport Ranch Ph 05 Sec 01
- Davenport Ranch Ph 07 Sec 02
- Davenport Ranch Ph 07 Sec 03
- Davenport Rim Condo Amd
- Davenport West Sec 05 Ph 02
- Davis & Homers Subd
- Davis Hill Estates Sec 01
- Davis Place Twnhms Amd
- Davis Spg Sec 03-A
- Davis Spg Sec 05-A
- Davis Spring
- Davis Spring Sec 03-A
- Davis Spring Sec 03-B
- Davis Spring Sec 03-C
- Davis Spring Sec 03-D Amd
- Davis Spring Sec 05-A
- Davis Spring Sec 06-A
- Davis Spring Sec 3-a
- DAVIS SPRING SEC 5-A
- Dawson
- Dean Terrace
- Deatonhill Condo Amd
- Decker
- DECKER I
- Decker SoCo Boudin
- Deep Eddy
- Deep Eddy Heights
- Deer Creek
- DEER PARK
- Deer Park At Maple Run Sec 10
- Deer Park Sec 01
- Deer Park Sec 03
- Deer Park Sec 05
- Deerbrook Village
- Deets E H Et Al Estate
- Del valle S
- DEL VALLE S ACRE .965
- Delafield
- Delancey
- Delano Condominiums
- Delcrest Add Resub
- Delcrest Add Sec 02
- Delphi Condo
- Delvalle S
- DELVALLE S ACR
- Delwood
- Delwood 04 East Sec 01
- Delwood 04 East Sec 02
- Delwood 04 Sec B
- Delwood Heights
- Delwood Sec 01
- Delwood Sec 02
- Delwood Sec 03
- Delwood Sec 04
- Delwood Terrace Sec 01
- Delwood Terrace Sec 02
- Delzell Sec 02
- Demary
- Denizen Condo Amd
- Denizen Condominiums
- Destiny Hills Sec 2
- Devonshire Park Sec 03
- Devonshire Village/Windsor Park
- Dewitt
- Dittmar Crossing
- DIV D GRAHAM
- Division A
- Division B
- Division C
- Division D
- Division E
- Division O
- Division Z
- Dixie Terrace
- DOMAIN SOUTH END
- Dominion Condo
- Donohoe Add
- Dorsett Oaks
- Dove Spgs Ph 04 Amd
- Dove Spgs Sec 01
- Dove Spgs Sec 02 Ph 02
- Dove Springs
- Dove Springs Ph 03
- Dowell John
- DOWNEY & JOHNSON ADDN
- Downtown
- Draper
- Drew Lane Condominiums
- Driftwood business center
- Driving Park Add
- Driving Park Add 02
- Dry Creek West Condo
- DT
- Dunbarton Oaks
- Duty J
- Duval City Homes Condo
- Duval Villas
- Duval Villas 02
- E B HARGRAVES SURVEY
- E M Franklin Sub
- Eagle View Place
- East 02 Street Condo Amd 2024
- East 11th Street
- East 13th Street Condo
- East 16th Street Condominiums
- EAST 17TH CONDOMINIUMS
- East 22nd Street Garden Homes
- East 2nd Condos
- East 33rd Condo
- East 5th Condos
- East Austin
- East Ave
- East Cesar Chavez
- East End Flats Amd
- East Fourth Street Condos
- East Grove Condominiums
- East Parke
- East Shore Condominiums
- East University Place
- East University Place Condominiums
- East University Place Condos
- East Village
- East Village Condo
- East Village Condo The
- Eastern Heights Sec 01
- Eastfield
- Eastgate
- EASTGATE CONDOS
- Eastline Condos
- Easton Park
- Easton Park 50s
- Easton Park 60’s
- Easton Park HOA
- Easton Park Ph 1 Sec 3A
- Easton Park Ph 2 Sec 1C
- Easton Park Ph 2 Sec 3A
- Easton Park Prospect Park Ph 1
- Easton Park Sec 1A
- Easton Park Sec 1C
- Easton?Park
- Eastover
- Eastover Resub
- Eastwood At Riverside
- EASTWOOD AT RIVERSIDE II CONDOMINIUMS
- Eastwood Vlg Condo
- Eastwood/Riverside Ii Condos
- EB HARGAVES SURVEY
- Eck Lane
- Ecks Heights
- Edge Cliff NW
- Edgecliff Nw Condo Amd
- Edgecliff Nw Condominiums Amended
- Edgecreek
- Edgecreek Condo Amd
- Edgecreek Condominiums
- Edgefield Add
- Edgemont
- Edgewick
- Edgewick Condo
- Edgewick Condominiums
- Edgewick Condos
- Edgewood Sec 01
- Edgewood Sec 2
- Edinburgh Gardens Sec 01
- Edinburgh Gardens Sec 1
- Edmonds Resub
- Eight Hundred Banister Place
- El Sendero Luminoso
- Eldridge T
- Elisha Allen Surv Abs #18
- Ellis Highline Condominium
- Elm Grove Add
- Elm Park
- Elmhurst
- Elmhurst Amd Of Lts 5&6
- Elmhurst Heights
- Elmhurst Heights Sec 01
- Elmhurst Heights Sec 03
- Elmhurst Oaks
- Elmwood Estates
- EM Franklin Sub
- Emerald Bay
- Emerald Forest Sec 01
- Emerald Forest Sec 02
- Emerald Forest Sec 05
- Emerald Forest Sec 2
- Emerald Point
- Enchanted Forest
- Encinal Condo
- Enclave at Alta Vista
- Enclave At Alta Vista Amd
- Enclave At Commanders Point
- Enclave At Commanders Point Am
- Enclave At Covered Bridge
- Enclave at Dulce Lane
- Enclave At Estancia
- Enclave At Estancia Condominiu
- Enclave At Estancia Condominiums
- ENCLAVE AT ESTANCIA CONDOMINIUMS AMD PLUS
- Enclave At Gracywoods
- Enclave at Harris Ridge
- Enclave at Highland Horizon
- Enclave At Rob Roy
- Enclave At Sierra Vista
- Enclave at Sutherlin
- Enclave At Walnut Spgs Condo
- Enclave At Westgate
- Enclave Sec 2 At The Villages of Spicewood
- Enclave Sec 2 At The Villageso
- Enclave Villas Condo
- Enclave/Hlnd Horizon
- Encore at Drew Lane
- Ends On 06
- Enfield 10
- Enfield A
- Enfield B
- Enfield C
- Enfield Challenge Condo
- ENFIELD CHALLENGE CONDOMINIUMS
- Enfield E
- Enfield E-H South Ext
- Enfield F
- Enfield G
- Enfield H
- Enfield H South Ext
- Enfield Plaza Condo
- Enfield Townhomes
- Enfield Twnhms
- Enfield West 02 Condo Amd
- Ep Residential Condos
- Escala At 34th Condo
- Escala At San Gabriel Condo
- Escala/San Gabriel Condos
- Escondera Condo Amd
- Escorial Condo
- Esquel Ph 01 Sec 03
- Estancia
- Estancia Hill Country Sub Ph 3
- Estancia West
- Estates Above Lost Creek
- Estates at Grandview Hills
- Estates At Hunters Chase Sec 02
- Estates Bauerle Ranch
- Estates Brentwood
- Estates Lakeway Hills Sec 02
- Estates Lewis Mountain
- Estates of Brentwood
- Estates Of Flintrock The
- Estates of Loma Vista
- Este Condo
- ESTE; Condominium
- ETJ
- Eubank Acres Sec 01
- Eubank Acres Sec 02
- Eubank Acres Sec 03
- EVANS AVENUE CONDOMINIUMS
- F1431cp-F1431cp
- Fair Grounds Add
- Fairlake Condo
- Fairmont Park Sec 01
- Fairmont Park Sec 02
- Fairview Heights
- Fairview Park
- Fairway Greens Sec 01
- Fairway Heights
- Fairway Ridge Amd
- Fairways At Steiner Ranch
- Fairways On Fazio At Barton Creek
- Fairways On Fazio At Barton Creek Co
- Falconhead
- Falconhead West
- Falconhead West Ph 1 Sec 2 &
- Family Tree
- Far West Skyline Condo
- Farmer Insurance
- Farmer Village Twnhm Condos Bldg 1
- Faulk Henry
- FAWN RIDGE
- Fawn Ridge Sec 01
- Fawn Ridge Sec 02
- Fellman Heights
- Felps-Johnson
- Field House
- Field House Condos
- Fiesta Apts 01
- Fifth & West
- FIFTH & WEST RESIDENCES
- Fifth &West Residences
- Fifth and West Residences
- FIFTY ONE EAST
- Fifty One East Condos
- Fifty Seven Hundred Fifty Balc
- Fifty-One East Condos
- Final Plat/Hlnd Horizon Ph Ii
- Firehouse Business Center
- Fischer Add
- FISCHER ADDN
- Fiset Place
- Fisher Josephine L Reservation
- Fiskville School Add
- Fitzhugh Park Condominium
- Fitzhugh Ranch
- Fitzhugh Town Center Condo
- Five Fifty 05 Condo Amd
- Five Fifty Five Condominiums
- Flagstone Terrace Condo
- Flagstone Terrace Condo Ph 01
- Flagstone Terrace Condo Ph 02
- Flamingo Condo
- Flat on Wilson
- Flats 935 Condos Bldg 5
- Flats at 935
- Flats on Wilson
- Flats On Wilson Condo A
- Flats/935 Condos
- Flats/935 Condos Bldg 4
- Flint Rock Hill
- Flintrock At Hurst Creek
- Flintrock At Hurst Creek Ph 01
- Flintrock At Hurst Creek Ph 02
- Flintrock At Hurst Creek Ph 02; Lakeway
- Flintrock At Hurst Creek Ph 03
- Flintrock At Hurst Creek Ph 05
- Flintrock At Hurst Creek Ph 07
- Flintrock At Hurst Creek Phs 1
- Flournoy
- Flournoy & Jones 04 Sec 01
- Flournoy Heights Sec 05
- Flournoy M H Sec 01
- Flournoy’s Eastern Hills Sec 4
- Flournoys Eastern Hills Sec 04
- Flournoys Eastern Hills Sec 3P
- Flournoys Sweetbriar Sec 02
- Flournoys Sweetbriar Sec 03
- Flournoys Sweetbriar Sec 04
- Flournoys Sweetbriar Sec 05
- Flournoys Sweetbriar Sec 06
- Flournoys Sweetbriar Sec 07
- Flournoys Sweetbriar Sec 08
- Flournoys Sweetbriar Sec 09
- Flournoys Sweetbriar Sec 10
- Flournoys Sweetbriar Sec 11
- Flournoys Sweetbriar Sec 4
- Ford Oaks
- Ford Oaks Annex Resub
- Ford Place
- Ford Place 01
- Ford Place 02
- Ford Place 2
- Forest Bend Twnhs
- Forest Bluff
- Forest Bluff Express 50
- Forest Bluff Sec 03
- Forest Bluff Sec 04
- Forest Bluff Sec 6
- FOREST BLUFF SEC 7
- Forest Hills
- Forest Hills A Add
- Forest Hills B
- Forest Hills C
- Forest Hills Resub
- Forest Mesa
- FOREST NORTH ESTATES
- Forest North Estates Ph 01
- Forest North Estates Ph 02
- Forest North Estates Ph 03
- Forest North Estates Ph 04
- Forest North Estates Ph 2
- Forest North Estates Ph 3
- Forest North Estates Ph 4
- Forest North Estates Ph 5
- Forest Oaks
- Forest Oaks Sec 02
- Forest Park
- Forest Way
- Forest Wood
- Forrest Bluff
- FORT DESSAU
- Fort View Hills Sec 01
- Foster
- Foster A R
- Foster Lane Twnhms
- Foundry
- Four Points
- Four Points- preserve at
- Four Seasons Lake Austin Private Residences
- Four Seasons Summer Sec
- Fourteenth Fairway Condo
- Fourth &
- FOURTH & CONDOMINIUMS
- Fourth & Condos
- Fourth & Master Condos
- Fourth and Condominiums
- Fourth&
- Fox Hollow Condo
- Fox Hollow Condo
- Fox Hollow Condo Amd
- Fox Schmidt
- Foxfield
- Frank
- Franklin Park
- Franklin Park Amd
- Franklin Park Sec 02
- Frazier Add
- Fredericksburg Road Acres
- Free & Williams
- Freewater Add
- Freewater Addn
- French Creek Crossing
- Friendship Ranch Ph Ii
- Fritts Add
- Frontier At Montana Amd
- Frontier Village Sec 03
- Fruth Add
- Gabardine Condo
- Gabardine Gardens at Shady Hollow
- Gables Condo
- Galileo At 25 Condo
- Galindo
- Galleria Walk
- Galleria Walk Ph 3-5
- Galleria Walk Ph 6 & 7
- Ganzert Park 01
- Garages of Texas at Lakeway
- Garden Oaks Sec 01
- Garden Oaks Sec 02
- Garden Oaks Sec 03
- Garden Oaks Sec 05-A
- Garden Oaks Sec 06
- Garden Square One Condos
- Garden Villa Estates
- Gardens At Covered Bridge
- Gardens At West 07 Condo Ame
- Gardens Of Balcones Community
- Garrison Park
- Gary & Peck
- Gaston Park
- Gaylor Condominiums
- Gazebo Condo
- Gazebo Condominiums
- Geneva Estates
- Geneva Estates Sec 01
- George
- George W Spear League
- Georgetowne Square
- Georgian & Fawnridge Add
- Georgian Acres
- Georgian Arces
- Georgian Condo
- Georgian Condominiums The
- Georgian Terrace
- Gerald Add
- Gh Arc Carson Ridge Condominiu
- Gift-Neuhaus
- Gilbert Court Condo Amd
- Gilbert Lane
- Gilbert Lane Ph 2
- Gilbert Lane Ph 3
- Gilbert Lane Ph 5
- Gilbert Lane/ Tiermo
- Giles
- Giles Place Sec 01
- Gillis Heights
- Glen Allen Condo
- Glen Allen Condos
- Glen At Thomas Spgs
- Glen Ora Condo Amd
- Glencliff
- Glencoe Sub Amd
- Glenlake Ph 01
- Glenlake Ph 02
- Glenlake River Pointe
- Glenmar Sec 02
- Glenway Terrace
- Glenwood
- Glenwood Add
- Glenwood Add Amd Lt 12 & 13 B
- Glenwood Addn
- Glenwood Square
- Goldenwood Sec 1
- Goldenwood Sec 4
- Goldenwood West Sec 1
- Goldenwood West Sec 3 Roads Exempt
- Golf Club At Avery Ranch Avery Morrison Blk
- Golf Cottages Of Academy Place
- Goodnight
- Goodnight Austin
- Goodnight Ranch
- GOODNIGHT RANCH CONDOMINIUMS
- Goodnight Ranch Ph 1 Sec 2
- Goodnight Ranch Ph 1 Sec 3
- Goodnight Ranch Ph 1A Sec 7
- Goodnight Ranch Ph 2 East Sec
- Goodnight Ranch Townhomes
- Goodnight Townhome Condominiums
- GOODWIN
- Goodwin E C
- Govalle
- Governors 02 Condo
- Grace Hill
- Gracy Meadow Condo Amd
- Gracy Meadow Condominiums
- Gracy Woods
- Gracywoods Pud Sec 02
- Gracywoods Sec 01
- Gracywoods Sec 03
- Gracywoods Sec 04
- Gracywoods Sec 05
- Gracywoods Sec 06-B
- Gracywoods Sec 08
- Gracywoods Sec 09 & 10
- Graham
- Graham Place Condo Amd
- Graham Subd
- Granada Estates Sec 01
- Granada Estates Sec 04
- Granada Hills
- Granada Hills Amd
- Grand Oaks Amd
- Grand Oaks Office Condo Amd
- Grandview Hills
- Grandview Hills Sec 04
- Grandview Hills Sec 08
- Grandview Hills Sec 08 Amd
- Grandview Place
- Grant Park
- Graveyard Point
- GRAVITY ATX CONDOMINIUMS
- Gravity ATX Condos
- Gravity Condos
- Gray T
- Great Hills
- Great Hills 01
- Great Hills 02
- Great Hills 04 Amd
- Great Hills 20
- Great Hills 23
- Great Hills 26
- Great Hills 7-A
- Great Hills A
- Great Hills Ph 02 Sec 01 Amd
- Great Hills Ph 02 Sec 02 Amd
- Great Hills Sec 09
- Great Hills Sec 10
- Great Hills Sec 18-B
- Great Hills Sec 24
- Great Hills Sec 25
- Great Hills Sec 28
- GREAT HILLS SEC 30
- Great Oaks At Brushy
- Great Oaks Sec 02
- Green Acres
- Green Hills
- Green Park Sec 03
- Green Valley 01
- Green Valley 02
- Green Vly 1
- Greenbriar Sec 01
- Greenbriar Sec 02
- Greenbriar Sec 02 Resub
- Greenbriar Sec 03
- Greenbriar Sec 04
- Greenbriar sec 1
- Greenbriar Sec 2
- Greenleaf Estates Sec 02
- Greenpoint Austin Condos
- Greens Sec 02, Great Hills
- Greenshores On Lake Austin Ph
- Greenshores On Lake Austin Ph 01
- Greenshores/Lk Austin Ph 02
- Greenslopes
- Greenslopes Ph 01
- Greenview on Barton Creek
- Greenview On Barton Creek Condo
- Greenview Row Condo Amd 4608
- Greenway Lofts
- Greenway Lofts Condo Amd
- Greenwood Forest
- Greenwood Forest Sec 01
- Greenwood Forest Sec 02
- Greenwood Forest Sec 1
- Greenwood Heights
- Greenwood Hills Sec 01
- Greenwood Hills Sec 02
- Greenwood Hills Sec 04
- Greenwood Hills Sec 06
- Greenwood Towers Amd
- GREENWOOD TOWERS AMENDED
- Greenwoood Heights
- Grey Rock Village At Anderson Mill
- GREYROCK RIDGE
- Greyrock Ridge Ph 1
- Greyrock Ridge Ph 3
- Greystone at Prather Condominiums
- Greystone/Prather Condos
- Griffin Condo
- Gritten
- Grooms
- Grooms Add
- Grove
- Grove Condos Bldg 3
- Grove Condos Bldg 7
- GROVE MASTER CONDOMINIUMS
- Grove Master Condos
- Grove/Clawson Condos Bldg 2
- Grover Ave Condo 5412
- GROVER AVE CONDOMINIUMS
- Guadalupe 31 Condo
- Guadalupe Square Condo
- Guadalupe Square Condominiums
- Guild Lofts Condominiums
- Gullett Gardens
- Gullett Gardens 02
- Gullett Gardens 2 Amd Lts 1
- Gypsy Grove
- H H H R Resub
- H I 01 Austin
- Habichts
- Habidad Condo Amd
- Hacienda Condominiums
- Hamilton C A
- Hampton Park Condos
- Hampton Park Terrace Homes
- Hancock
- Hancock Estates
- Hancock Lewis
- Hancock Lewis Resub
- Hancock Park
- Hardy Add
- Harkins C E
- Harmon Terrace
- Harper
- HARPER PARK
- Harper W A
- Harpers
- HARPERS RESUB
- Harrell John M
- HARRIET COURT CONDOMINIUMS
- Harrington
- Harris Branch
- Harris Branch Ph 01-A Sec 02
- Harris Branch Ph 01-A Sec 03
- Harris Branch Ph 01-B Sec 01
- Harris Branch Ph 01-B Sec 02
- Harris Branch Ph 01-D
- HARRIS BRANCH PHS 1 A SEC II
- Harris Park Add
- Harris Ridge Ph 01 Sec 01
- Harris Ridge Ph 01 Sec 02
- Harris Ridge Ph 02 Sec 01 Rep
- Harris Ridge Ph 03 Sec 02
- Harris Ridge Ph 03 Sec 03
- Harris Ridge Ph 04 Sec A-1
- Harrisdale
- HartKopf
- Hartwell
- Hartwell Add
- Harwood
- Hatley Park Estates
- Haven
- Haven Residential Condo
- Hawkridge
- HawkRidge Ph 1
- Hawkridge Ph 2
- Heatherwood
- Heatherwood Condo Ph 02
- HEATHERWOOD CONDOS
- Hegman
- Hegman Sub
- Heights At Loma Vista
- Heights at Vista Parke
- Heights/Vista Parke Condos
- Heissner
- Hemphill Oaks Condos
- Hennig Heights 01
- Henry Faulk
- Heritage Condo Amd
- Heritage Condo Amend
- Heritage Country
- Heritage Hills
- Heritage Hills Sec 01
- HERITAGE HILLS SEC 1
- Heritage Oaks
- Heritage Oaks At Pearson
- Heritage Oaks At Pearson Ranch
- Heritage Oaks Sec 2-A
- Heritage Oaks Sec 2-B
- Heritage Square Condo
- HERITAGE SQUARE CONDOMINIUMS
- Heritage Village
- Heritage West
- Hickman Oaks
- Hidden Valley
- Hidden Valley Ph B
- Hidden Valley Sec 02
- Hielscher Sec 01
- Hielscher Sec 04
- Hielscher Sec 04 Circle C Ranch
- Hielscher Sec 07
- Hielscher Sec 08
- Hielscher Sec 14
- Hielscher Sec 15
- High Canyon Estates Amd
- High Oaks
- High Pointe Ph 2 Sec 1
- High Pointe Ph 2 Sec 2A
- High Pointe Ph I Sec One
- High Pointe Ph Iii Sec One
- High Pointe Ph Iv Sec One-A
- High Pointe Ph IV Sec One-B
- High Pointe Ph V Sec One
- High Road View
- Highland
- Highland Club Village Sec 01
- Highland Club Village Sec 02
- Highland Club Village Sub
- Highland Hills
- Highland Hills Northwest Sec 03
- Highland Hills Sec 05 Ph 01
- Highland Hills Sec 05 Ph 02
- Highland Hills Sec 07 Ph 01
- Highland Hills Sec 08
- Highland Hills Sec 09 Ph 02
- Highland Hills Sec 1
- Highland Horizon
- Highland Horizon Ph 01
- Highland Horizon Ph 02
- Highland Horizon Ph I
- Highland Horizon Ph Ii
- Highland Horizon Ph Iv
- HIGHLAND OAKS
- Highland Oaks Sec 02
- Highland Park
- Highland Park West
- Highland Park West Condo Amd
- Highland Park West Condominiums Amended
- Highland Park West Sec 03
- Highland Park West Sec 04
- Highland Terrace
- Highland Village Sec 02 Pt 01
- Highland Village Sec 02 Pt 02
- Highland/Wallace J P
- Highlands
- Highlands At Oak Forest
- Highlands The
- HIGHLANDS; NORTH LOOP; HYDE PARK
- Highlands/University Hills
- Highlands/University Hills Sec
- Highmark
- Highmark Bldg 11
- Highpoint
- HIGHPOINTE
- Highpointe Condo
- Highpointe of Dripping Springs
- Highpointe Ph 02 Sec 01
- Highpointe Ph 04 Sec 02
- Highpointe Ph 1 Sec Three B
- HighPointe Ph I Sec One
- Highpointe Ph I Sec Three A
- Highpointe Ph Ii Sec Two-B
- Highpointe Ph Iii Sec One
- Highpointe Ph V Sec Three
- Highpointe Ph V Sec Two
- Highway Add
- Hill
- Hill Country Galleria
- Hill Country Glen Allen Condo
- Hill Country Ph 02-A
- Hillcrest Sec 01
- Hillcrest Sec 02
- Hillcrest Sec 03
- Hillcrest Sec 04
- Hillcrest Sec 1
- Hillcrest Village
- HILLS AT ESTANCIA
- HILLS AT ESTANCIA CONDOMINIUMS
- Hills Lakeway Ph 03
- Hills Lakeway Ph 08
- Hills Lost Creek Sec 02
- Hills Lost Creek Sec 05
- Hills Lost Creek Sec 07-A
- Hills Lost Creek Sec 08
- Hills of Bear Creek
- Hills of Estancia
- Hills Of Lakeway Phs 6 The
- HILLS OF TEXAS
- Hills Of Texas Estates
- Hillside
- Hillside / Spanish Oaks
- Hillside Amd The
- Hillside at Spanish Oaks
- Hillside/Spanish Oaks
- Hilltop Add
- Hilltop Addn
- Hillview Green
- Hinojosa Pomper
- Hinton Add
- Hoagland Add
- Hobbs Add
- Hoffman Charles
- Hofheinz E J Resub Lt 19 Beau
- Hole In Add 01
- Holiday Heights Sec 01
- Holiday Hills Sec 01
- Holiday Hills Sec 1
- Holiday Square
- Holiday Square Condo Amd
- Hollow At Slaughter Creek
- Hollow At Slaughter Creek Sec
- Hollow At Slaughter Creek Sec 1
- Holly & Naumann
- Holly District, Fair Grounds Add
- Holly House Condos
- Holly Neighborhood
- Holton
- Holy Cross Heights
- Holy Cross Heights Resub
- HOM
- HOM CONDOMINIUMS
- HOM CONDOMINIUMS Govalle area
- Hom Condos
- Homestead Sec 02
- Homestead Sec 04
- Homewood Heights
- Honey Creek
- Hooper Richard 04
- Horizon
- HORIZON SUBD
- Hornsby Glen Ph 01
- Horseshoe Bend
- Horseshoe Bend Sec 02
- Horseshoe Bend Sec 03 Amd
- Horsts Louis
- Houston Street
- HS ON COMMERCIAL LAND
- Huber Lindy
- Hudson Bend
- Hudson Bend Colony 01
- Hudson Bend Colony 02
- Hudson Bend Colony 2
- Hudson Bend Colony No 2
- HUDSON BEND ROAD
- Hudsons W
- Hughes Park Lake 01
- Hughes Park Lake 02
- Hummingbird Flats
- Hummingbird Flats Condominium Community
- Hunter Oaks
- Hunters Chase Sec 01
- Hunters Chase Sec 02
- Hunters Chase Sec 03
- Hunters Chase Sec 04
- Hunters Chase Sec 05 Amd
- Hunters Chase Sec 06
- Hunters Chase Sec 07 Amd
- Hunters Chase Sec 07 Amd Pt Amd
- Hunters Chase Sec 3
- Hunters’ Chase Sec 5 & 7
- Hunterwood/Davenport West
- Huntington Place
- Huntland
- Huntland Heights
- Huntland Heights Sec 01
- Huntland Heights Sec 02
- Hurst
- Huston Sam Heights
- Hyde Park
- Hyde Park Add
- Hyde Park Add 01
- Hyde Park Add 02
- Hyde Park Addn No 2
- Hyde Park Annex
- Hyde Park Anx
- Hyde Park Condo
- Hyde Park Oaks Condo
- Hyde Park Terrace Condo
- Hymeadow Office Park Condos
- Hymeadow Wood Office Park Condos
- Hypoint
- I0320-I0320
- Ideal Place
- Imperial Condo
- Imperial Valley Sec 01 Amd
- Imperial Valley Sec 02
- Independence Park
- Independence Park Condo Amd
- Independence Park Condo Amend
- INDEPENDENT
- Independent Condominiums
- Independent Condos
- Indian Hills
- Indian Hills Sec 01
- Indian Hills Sec 02 Rev
- Indian Hills Sec 03
- Indian Hills Sec 04
- Indian Hills Sec 05
- Indian Hills Sec 05 Amd
- Indian Hills Sec 3
- INDIAN HILLS SEC 5
- Indian Oaks
- Indian Oaks & Resub
- Industrial Add
- Industrial Add Annex
- INDUSTRY SOMA CONDOMINUIMS
- Ingleside
- Ingleside Condos
- Ingleside Condos Bldg 12
- Ingleside Condos Bldg 22
- Ingleside Condos Bldg 8
- Inman Heights
- Inwood Hills
- Inwood Park
- Irenes Addn A
- Isaac Decker League
- Isaac-Wilson
- Isabel Add
- Island At Mount Bonnell Shores
- ISLAND AT MT BONNELL SHORES
- Island On Westlake
- Ivy 78704 Condo Amd
- Ivy 78704 Condo Amd The
- Ivy On Kinney Condo Amd
- J Bouldin Residences
- J Burleson
- J C Tannehill League Sur 29
- J C Tannehill Surv 29 Abs 22
- J Jett
- J P Wallace
- J Rice Surv #31 Abs # 675
- J T Ltd 06
- J Tannehill League
- Jacks Pond Sec 01
- Jacks Pond Sec 03
- Jackson Terrace 02 Amd
- Jain Lane Add
- James Byrnes
- James H Gillespie Surv #64 Abs
- James P Wallace
- James P Wallace League
- James Spillman Surv
- Jamestown Place Condo Amd
- Jamestown Sec 01
- Jamestown Sec 03
- Janes Add
- Jefferson Square Condo Amd
- Jefferson Village
- Jefferson Village / Crestview
- Jenkins R L
- Jesse C Tannehill 1 League Sur
- Jesse C Tannenhill Surv #29 Ab
- Jessie Street Twnhms
- Jessie Williams Surv #62
- JESTER ESTATE
- Jester Estate Sec 01 Ph 01
- Jester Estate Sec 01 Ph 02
- Jester King Ranch
- Jester Point 02 Sec 03
- Jester Point 02 Sec 04
- Jester Point 02 Sec 06-B
- JESTER POINT 2 SEC 7
- Jett J
- Jinx Ave Condos
- Jj Hyatt Surv #624
- JJ Seabrook Drive Condo
- Joe Sayers Condo
- Johanna Street Condo
- John Barton Surv
- john barton survey
- John Burleson Surv
- John McDonald Surv #102
- Johns C R
- Johns C R Subd
- Johns CR Eastgate
- Johnson & Hoffman
- Johnson Albin
- Johnson Charles Add
- Johnsons L C Resub
- Johnsons River Add
- Johnston Terrace
- Johnston Terrace Sec 02
- Johnston Terrace Sec 07
- Jolly Oaks Ph 1
- Jolly W T
- Jollyville
- Jones & Sedwick
- Jones I P
- Jones J Godwin
- Jones M L
- Joseph Edward
- Jumano On Fifth Sub
- Juniper Ridge Office Condo
- Junker Addn
- K & K Add 02
- Kaiser Richard J
- Karotkin Martha
- Kasparek Add
- Kasparek Addn
- Kealing Sec 02
- Kellywood Estates Sec 02
- Kenray Condo
- Kensington Park
- Key Ranch At The Polo Club
- Keystone Add
- Kims Auto
- Kincheon
- Kincheon Sec 01
- Kings Village
- Kings Village Sec 02 Pt 01
- Kinney Ave Condo Amd 2002
- Kinney Mues Condo Amd
- Klassen Add
- Knollwood A
- Knollwood Condo Amd
- Knollwood on the Colorado
- Knollwood On The Colorado Rive
- Knollwood On The Colorado River
- Knollwood On The Colorado River Sec 01
- Koenig Place
- Koenig Townhomes
- Koenig Townhomes Condominiums
- Kramer Heights Condominiums
- Kylar & Smith Sub
- La Costa
- La Hacienda Estates
- La Hacienda Estates Sec 02
- La Perla
- La Prelle Place
- La Prelle Place Resub
- La Vid Condo Amd
- laan
- Laan Condominiums
- Laan Condos Bldg 1
- Laan Condos Bldg 11
- Laan Condos Bldg 4
- Laan Condos Bldg 7
- Lacoste Add Tarrytown
- Lacrosse Sec 01
- Lacrosse Sec 02
- Lacrosse Sec 04
- Ladd N A Add
- Ladera
- Ladera Ph 1
- Ladera Ph 3a
- Ladera Ph 3b
- Ladera Ph 4a
- Ladera Professional Offices
- Lafayette Heights
- Lafayette Place Condo Amd
- Lago Villa
- Laguna Loma Sec 2
- Lake At Wells Branch Sec 01
- Lake At Wells Branch Sec 02
- Lake Austin
- Lake Austin Hills Homes
- Lake Austin Village
- Lake Center
- Lake Country Estates
- Lake Country Estates Sec 02
- LAKE CREEK
- Lake Creek At Anderson Mill
- LAKE CREEK OFFICE COMPLEX
- LAKE CREEK OFFICE PARK
- Lake Creek Villas
- LAKE CREEK VILLAS CONDO
- Lake Oak Estates
- Lake Oak Estates Sec 01
- Lake Park
- Lake Park Amd
- Lake Pointe
- Lake Pointe Ph 01b
- Lake Pointe Ph 02
- Lake Pointe Ph 04-A
- Lake Pointe Sec 03 Ph 02
- Lake Pointe Sec 03 Ph 03
- Lake Pointe Sec 03 Ph 04
- Lake Pointe Sec 04
- Lake Pointe Sec 05
- Lake Pointe Sec 06
- Lake Pointe Sec 07
- LAKE POINTE SEC 3 PHS 2
- Lake Rdg Estates
- LAKE RIDGE ESTATES
- Lake Ridge Estates Sec 02
- Lake Ridge Estates Sec 04
- LAKE RIDGE ESTATES SEC 3
- Lake Ridge Heights
- Lake Ridge on Rough Hollow
- Lake Shore Add
- Lake Shore Add 2
- Lake View Add
- Lakehouse Condo Community Amd
- Lakeland Hills Lakeside
- Lakeland Hills Sec 01
- Lakeland Hills Sec 02
- Lakeland Park
- LAKELINE CENTER
- LAKELINE CENTER CONDO, BLDG 12
- Lakeline Center Condos
- Lakeline Center Condos Bldg
- Lakeline Center Condos Bldg 10
- Lakeline Center Condos Bldg 23
- Lakeline Center Condos Bldg 34
- Lakeline Center Condos Bldg 7
- Lakeline Square Condo
- Lakes At Northtown Sec 5 The
- Lakeshore Village
- Lakeside 01-B
- Lakeside at the Park
- Lakeside University Hills
- LAKESIDE VILLAS CONDOMINIUMS
- Lakeside Villas Condos
- Lakeside Villas II
- Lakeview
- LAKEWAY
- LAKEWAY HIGHLANDS
- Lakeway Highlands Ph 01 Sec 02
- Lakeway Highlands Ph 1 Sec 2
- Lakeway Highlands Ph 1 Sec 5
- Lakeway Highlands Ph 1 Sec 7B
- Lakeway Highlands Ph 2 Sec 1A
- Lakeway Highlands Ph 2 Sec 4
- Lakeway Highlands, Rough Hollow
- Lakeway Hlghlands Rough Hollow
- Lakeway Hlnds Ph 3 Sec 4
- Lakeway Sec 02
- Lakeway Sec 03 Amd
- Lakeway Sec 06
- Lakeway Sec 18
- Lakeway Sec 24-B
- Lakeway Sec 24-C
- Lakeway Sec 31
- Lakeway World Tennis Condo
- Lakewind Estates Sec 03
- Lakewood Condo Amd
- Lakewood condo’s AMD
- Lakewood Park Sec 04
- Lakewood Sec 01
- Lakewood Sec 02 Ph 01
- Lakewood Sec 03
- Lakewood Sec 04
- Lakewood Sec 05-A
- Lakewood Sec 05-B
- Lamar Village
- Lambert Park
- Lambie Street Condo
- Lamplight Village Sec 01
- Lamplight Village Sec 02
- Lamplight Village Sec 03
- Lamplight Village Sec 04
- Lamplight Village Sec 05
- Lamplight Village Sec 06
- Lamplight Village Sec 5-b
- Lamplight West
- Lamplight West Sec 02
- Landing At Lakeway
- Landing/Lakeway Condos
- Landings at Wells Branch
- Landmark Square Condo
- Lanier Terrace Sec 01
- Lanier Terrace Sec 02
- Lanier Terrace Sec 04
- Lantana
- Lantana Sec 04
- Lantana Single Family Sec 01
- Larson Estates
- Lary Add
- Las Brisas
- Las Cimas Sec 01
- Las Cimas Sec 02
- Las Cimas Sec 03
- LAS CIMAS SEC 1
- Las Colinas Amd
- Las Colinas At Lake Austin Condo
- Lasseter H L Add
- Lattimore
- Laurel Canyon Ph 01
- Laurel Heights
- Laurels at Legend Oaks
- Laurels At Legend Oaks Ph 01 A Condo
- Laurels At Legend Oaks Ph 1 A
- Laurels At Legend Oaks Ph 3 A
- Laurels At Legend Oaks Ph 4 A
- Laurelwood Estates
- Lauve
- Lawless
- Leal Antonio S
- Ledge Stone
- Ledge Stone aka: Bush Ranch
- Lee
- Legend Oaks
- Legend Oaks 2 Shadowridge Crossing
- Legend Oaks Ph A Sec 02
- Legend Oaks Ph A Sec 02a
- Legend Oaks Ph A Sec 03a
- Legend Oaks Ph A Sec 04 & Ph B
- Legend Oaks Ph A Sec 05a
- Legend Oaks Ph A Sec 05b
- Legend Oaks Ph A Sec 4A & Ph
- Legend Oaks Sec 06
- Legend Oaks Sec 08
- Legends Way
- Legends Way at Onion Creek
- Legends Way Sec 1
- Legends Way Sec 1 Onion Creek
- Legends Way Sec 2
- Legends Way Sec 4
- Legends Way Sec 5
- Lenox Condo Amd
- Leon Place Condominiums
- Leon Street Condominiums
- Leon Street Condos
- Leonard Eck Surv 162
- Leralynn Place Condo
- LESIKAR
- Lewis Mountain Ranch Ph 01
- Lewis Mountain Ranch Ph 02
- Lexington Square Condo
- Liberty Park Condo Amd
- Liberty Park Condominiums Amended
- Liggins Homestead
- Lightsey 2s 2nd Resub
- Lightsey Ridge
- Lightsey Twos Second
- Limerick Joseph Sub Olt 41 Di
- Lincoln Gardens
- Lincoln Gardens 01
- Lincoln Place
- Linden Condominium Residences
- Linden Condos
- Linscomb & Linscomb
- Little Ford Condominiums
- Littman
- Live Oak
- Live Oak Grove Add
- Live Oak Grove Resub
- Live Oak Lot 11
- Live Oak Subdivision
- Loft Condo Amd The
- Loft Condos
- Logsdon Roy & E C
- LOHMANS CROSSING ESTATES SEC
- Lohmans Crossing Estates Sec 2
- Lohmans Crossing Estates Sec 7
- Loma Linda
- Lone Star Bank
- Long Branch Valley
- Long Branch Valley Sec 03
- Long Canyon
- Long Canyon 02-A
- Long Canyon Ph 01-A
- Long Canyon Ph 01-B
- Longview
- Longview Terrace
- Loop Condo
- Lorraine Heights
- Los Altos Village
- Los Altos Village Condo Amd
- LOS INDIOS
- Los Indios Add Sec 1
- Los Indios Ph A
- Los Indios Phase A
- Lost Canyon Ranch 02
- Lost Creek
- Lost Creek – Sec 04 Ph A
- Lost Creek At Gaines Ranch
- Lost Creek At Gaines Ranch Rep
- Lost Creek Hill Top
- Lost Creek Sec 01
- Lost Creek Sec 02
- Lost Creek Sec 03-A
- LOT 2 BLK G SOUTH PARK SEC 2
- LOT 9 BLK 7 OLT 58 DIV B FOSTER SUBD
- Louis
- Louis Avenue Condominiums
- Loveless Add
- Low Theodore Heights
- Lynda Jo Lyons
- Lynnbrook Village Condo
- Lynndale Sec 02
- Lyric Condo Amd
- M K & T
- M S Z Add
- Maas Add
- Madrid
- Madrid Condo
- Madrone Canyon
- Madrone Ranch
- Madrones
- Magnolia Add
- Magnolia Addition
- Magnolia SOL-MLK Condominiums
- Maha Creek Estates
- Malaga Condo Amd
- Malone
- Manana Abe
- MANANA SUBD UNRECORDED
- Manana Terrace Lts
- Manana West
- Manchaca Estates
- Manchaca Estates Amd Resub
- Manchaca Estates Resub
- Manchaca Gardens
- Manor Estates
- Manor Forest
- Manor Hill
- Manor Hill Sec 02
- Manor Hills
- Manor Hills Sec 03
- Manor Hills Sec 04
- Manor Hills Sec 05
- Manor Hills Sec 10
- Manor Hills Sec 11
- Manor Road Add
- Manorhill
- Maple Run
- Maple Run Sec 01
- Maple Run Sec 02-A
- Maple Run Sec 03
- Maple Run Sec 04-A
- Maple Run Sec 05-A
- Maple Run Sec 06
- Maple Run Sec 07-B
- Maple Run Sec 08
- Maple Run Sec 09
- Maple Run Sec 3
- Marcae Condo
- Marietta Heights
- Marina Club Condo Amd
- Marina Village At Lakeway Condo
- Marina Village At Lakeway Condo Amd
- Mariposa Heights Sec 01
- Mariposa Terrace
- MARLO DRIVE CONDOMINIUMS
- Marlton Place Sec 01
- Marlton Place Sec 02
- Marlton Place Sec 2
- Marshall Ford Vista
- Martinshaw Resub
- Masonfield
- Masonfield Amd Of Lts 35&36 Bl
- Matthews Park
- Maxwell Condos
- Mayfair Terrace
- Mayfair Terrace Resub Of Lt 2
- Mayfield
- Mayo Add
- Mcbrine
- McBrine Subd
- McCormick Mountain Sub Ph 2
- McCormick Mountain Sub Ph 3
- Mccormick Ranch On Lake Austin
- McEntire H L
- Mchone Add
- Mckinley Heights
- McKinley Heights 02
- McKinley Heights 04
- McKinley Heights Terrace
- McKinney Crossing
- Mckinney Crossings Condominiums
- McKinney Heights
- McKinney Park East Sec 01
- Mckinney Park East Sec 02
- McKinney Park East Sec 03 Rep
- Mcquown A N
- Meadow
- MEADOW CREEK
- Meadow Creek Sec 01
- Meadow Lake Ph 01 02
- Meadow Lake Ph 03 & 04
- Meadow Lake Ph 03 & 04 Amd
- Meadow Mountain
- Meadow Mountain 03
- Meadow Ridge
- MEADOW THE
- Meadowbrook Sec 03
- Meadowcreek Sec 02 Ph 02
- Meadowfox Estates
- Meadowlawn Add
- MEADOWLAWN ADDN
- Meadows At Bluff Spgs
- MEADOWS AT TRINITY CROSSING
- Meadows At Trinity Crossing Ph
- Meadows At Trinity Crossing Ph 01-B
- Meadows At Trinity Crossing Ph 02-B-1
- Meadows at Trinity Crossing/Agave
- Meadows Brushy Creek
- Meadows Brushy Creek Ph 04
- Meadows Brushy Creek Ph 05
- Meadows Brushy Crk
- Meadows Condo Ph I Amd
- Meadows Of Anderson Mill
- Meadows Of Anderson Mill Phase 2
- Meadows/Brushy Crk
- Medical Center South Condo Amd
- Meisha
- Menchaca Condos
- Merdian
- Meridian Sec A2 & B2
- Meridian Sec C Ph 01
- Meridian Sec C Ph 02
- Meridian Sec C Ph 03
- Meridian Sec C Phs 1
- Meridian Sec D Ph 02
- Meridian Sec F
- MESA Condominiums
- Mesa Condos
- Mesa Park
- Mesa Park Ph 02 Sec 01
- Mesa Park Ph 03
- MESA PARK PHS 3
- Mesa Park Sec 01
- Mesa Park Sec 02
- Mesa Park Sec 03
- Mesa Park Sec 04
- Mesa Park Sec 06
- MESA POINT
- Mesa Valley
- MESA VALLEY SUBD
- Mesa Village Condo Amd
- Mesa Village Condominiums
- Messinger Village
- MESSINGER VILLAGES
- Messinger Vlgs Condos
- Metropole Condo
- Midblock
- Milago Condo Amd
- Milago Condominium
- Milam Grove
- Milburn Add.
- Milestone Southpark Condos
- Milford Oaks
- Millrun Village Anderson Mill
- Milrun Village At Anderson Mill
- Milwood
- MILWOOD 28
- MILWOOD 29
- Milwood 30 07-B
- MILWOOD 30B
- MILWOOD 35
- MILWOOD 36
- Milwood Sec 01 Ph 01
- Milwood Sec 03
- Milwood Sec 04
- Milwood Sec 05
- Milwood Sec 06
- Milwood Sec 07
- Milwood Sec 08
- Milwood Sec 09
- Milwood Sec 10
- Milwood Sec 11
- Milwood Sec 12
- Milwood Sec 14
- Milwood Sec 15-A
- Milwood Sec 16
- Milwood Sec 17
- Milwood Sec 22
- Milwood Sec 23
- Milwood Sec 26 A
- Milwood Sec 26a
- Milwood Sec 26b
- Milwood Sec 27B
- Milwood Sec 28
- Milwood Sec 29
- Milwood Sec 30C
- Milwood Sec 31A
- Milwood Sec 32a Rep Sec 32
- Milwood Sec 34
- Milwood Sec 35
- Milwood Sec 36
- Milwood Sec 37B
- Milwood Sec 38-A
- Milwood Sec 38B
- Milwood Sec 40b
- Milwood Sec 6
- Mimosa Manor Sec 01
- Mimosa Manor Sec 03
- Mira Loma Park
- Mira Monte Twnhms
- Mirabel Park Ph 1 Sec 2C
- Mirabel Park Ph 2 Easton Park Sec
- mission hill
- Mission Hill Sec 02
- MLK
- MLK-183
- Mockingbird Hill Sec 01
- Mockingbird Hill Sec 02
- Monaco Condo Amd
- Monroe Heights
- Monsanto Add
- Mont-Dale
- Monte Vista
- Montebello
- Montebello Condo
- Monterrey
- Montevista
- Montevista Condo
- Montevista Condo Amd
- Montevista Condo Ph 01 Amd
- Montevista Condo Ph 02 Amd
- Montevista Condo Ph 03 Amd
- Montevista Condo Ph 08 Amd
- Montevista Condominiums
- Montopolis
- Montview Acres
- Moore D C
- Moore-Tate 1610 Ravey Condomin
- Moore-Tate 4314 Jinx Condo
- Moore-Tate 712 Cardinal Lane C
- Mooreland Reserve
- Morado Cove Condo Ph 03
- Morningside
- Morningside Add
- Morningside Addn
- Morningside Residential Condom
- Morningside Residential Condos
- Morsland Place
- Mount Bonnell Shores Sec 03
- Mount Bonnell Terrace Sec 01
- Mountain View
- Mueller
- Mueller Fred A
- Mueller House Condo Ame
- Mueller Houses Ii
- Mueller Sec 04 Amd
- Mueller Sec 05
- Mueller Sec 10 A Sub
- Mueller Sec 11
- Mueller Sec 11 Sub
- Mueller Sec 11A
- Mueller Sec I-C Ph 1 Sub
- Mueller Sec Ix Sub Amd
- Mueller Sec Vi Sub
- Mueller Sec Vii-C Sub Amd
- Mueller TC-1B
- Murphys Meadow
- Murray Place
- Napier Add
- Natiivo
- Natiivo Austin
- NATIIVO AUSTIN Zopp Add
- NATIIVO AUSTIN Zoppp Add
- NATIIVO Zoppp Add
- Nativo
- Nativo Austin
- Neal Street Condominiums
- Neans Place Sec 01
- Neelys Canyon
- Neelys Canyon Condo Amd
- NEELYS CANYON CONDOMINIUMS A
- neighborhood
- Nelray Place Condo Amd
- Nelson Village at Easton Park
- Netherton-Patrick Resub
- New York Condo
- Newning & Warners
- Nichols
- Nitschke Winnie R
- Nokonah Condo Amd
- North Acres Sec 01
- North Acres Sec 02
- North Acres Sec 03
- North Bluff
- North Bluff Condos
- North Campus
- North Cat Mountain IV-A Las Ventanas Two
- North Cat Mountain Ph 02 Sec C
- North Cat Mountain Sec 02
- North Creek
- North Creek East Sec 01
- North Fork 02 Condo Amd
- North Fork Condo
- North Hills Club Townhouses
- North Hills Club Twnhs
- North Hills Office Park Condom
- North Hyde Park
- North Lakeway Village Sec 06
- North Lamar Park Sec 01
- North Lamar Park Sec 03
- North Loop
- North Loop Terrace
- North Meadows
- North Oaks
- North Oaks Hillside Sec 01
- North Oaks Hillside Sec 02-A
- North Oaks Hillside Sec 02-B
- North Oaks Hillside Sec 03
- North Oaks Sec 02
- North Park Estates
- North Park Estates Sec 02
- North Park Estates Sec 03
- North Park Patio Homes Amd
- North Plains
- North Point Ph 01 Sec 02
- North Shields Sec 01
- North Shoal Creek Estates Sec
- North Shoal Creek Estates Sec 1
- North Star
- North Star Sec 02
- North Star Sec 05
- North Star Sec 06
- North University
- Northcape Sec 01
- Northcape Sec 02
- NORTHCROSS BURNET ADDN
- Northeast Comm Bus Park Sec 02
- Northedge Condo
- northfeild
- Northfield
- Northfield Add
- Northfield Add*
- NORTHFIELD ADDN
- Northfield Annex 02
- Northgate Add
- NORTHGATE ADDN RESUB
- Northgate Half Acres
- Northgate Terrace Sec 01
- Northloop
- Northpark Ridge
- Northridge Acres 02
- Northridge Acres Rev
- Northridge Park II
- Northridge Park Sec 01
- Northridge Park Sec 02 Ph A-1
- Northridge Park Sec 02 Ph A-2
- Northtowne Sec 01
- Northtowne West Sec 01
- Northtowne West Sec 02
- Northtowne West Sec 05
- Northvale Sec 01
- Northvale Sec 02
- Northvale Sec 3
- Northway Crest Sec 02
- Northway Crest Sec 03
- Northwend Ph A
- Northwest Balcones Amd
- Northwest Balcones Sec 02
- Northwest Estates Sec 02
- Northwest Estates Sec 2
- Northwest Hills
- Northwest Hills Dry Creek Sec
- Northwest Hills Lakeview 03
- Northwest Hills Mesa Oaks Ph
- Northwest Hills Northwest Oaks
- Northwest Hills Oak Ridge
- Northwest Hills Sec 03
- Northwest Hills Sec 06
- Northwest Hills Sec 07
- Northwest Hills Sec 09-I
- Northwest Hills Sec 12
- Northwest Hills Sec 14-C
- Northwest Village Add
- Northwest Woods
- Northwood
- Northwood 03
- Northwood 04
- Northwood 05
- Northwood Sec 02
- Northwood Sec 06
- Northwood V
- Northwoods at Avery Ranch
- Northwoods Avery Station
- Northwoods Avery Station Cotta
- Norwood V H
- Nowlin Heights / French Place
- Nuckles Crossing Sec 02
- NUECES CONDOMINIUMS
- Nueces Corner Condo Amd
- Nueces Corner Condominiums Amended
- Nueva Vida 1-A
- Oak
- Oak Acres
- Oak At Twin Creeks Sec 03 The
- Oak At Twin Creeks Sec 05
- Oak Brook Sec 1
- Oak Brook Sec 2B
- Oak Brook Sec 4B
- Oak Country Estates
- Oak Creek Parke Sec 02
- Oak Creek Parke Sec 05
- Oak Crest Condo 2801
- Oak Forest Sec 01
- Oak Forest Sec 02
- Oak Forest Sec 03
- Oak Forest Sec 04 Amd
- Oak Forest Sec 05-A
- Oak Forest South
- Oak Forest Villas
- Oak Forest Villas Ph 02 Sec 02
- Oak Forest West
- Oak Glen
- Oak Haven Sec 01
- Oak Haven Sec 02
- Oak Haven Sec 04
- Oak Hill Add
- Oak Hill Heights Sec 01
- Oak Hill Heights Sec 03
- Oak Knoll Condo Amd
- Oak Knoll Condominiums Amended
- Oak Lawn Sec 01
- Oak Lawn Sec 02
- Oak Lawn Sec 03
- Oak Park Resub Sec 02 & Sec 03
- Oak Park Sec 01
- Oak Place Condo
- Oak Place Condominiums
- Oak Plantations
- Oak Rdg Heights Sec 01
- Oak Ridge Heights
- Oak Ridge Heights Sec 01
- Oak Ridge Heights Sec 03
- Oak Ridge Park At Kinnicinik Sec 2
- Oak Ridge Sec 01
- Oak Ridge Sec 03
- Oak Run Estates
- Oak Shadows Condo
- OAK SHADOWS CONDOMINIUM
- Oak Shadows Condos Unit 101b
- Oak Shores On Lake Austin Sec
- Oak Valley Park Sec 02
- Oakglen Park Sec 01
- Oaklawn Add
- Oaklawn Addn
- Oakmont Heights
- Oakmont Heights Annex 02
- Oakmont Heights Annex 03 Sec 03
- OAKRIDGE PARK
- OAKRIDGE PARK SECTION 2 AT KINNICINI
- OAKRIDGE PARK SECTION 2 AT KINNICIN
- OAKRIDGE PARK SECTION 2 AT KINNIkinik
- OAKRIDGE PARK AT KINNICINIK Sec 2
- Oaks
- Oakvale
- Oakview Condo
- Oakwood
- Oakwood Commons
- Oakwood Condo
- Oakwood Hollow Condo Amd
- Oasis Bluff Sec 02
- Oasis Village Sec 01
- Oasis Village Sec 03
- Oertli Add
- OERTLI CONDOMINIUMS
- Oil Mill
- Okie Heights
- Old Castle Hill Condo Amd
- old enfield
- Old Fredericksburg Road Office
- Old Stonehedge
- Old Town Condo Rev 1998
- OLD, SML CONDO COMPLEXES W/O AMENITIES-W UNIV
- Oldham Add
- Oliver Ranch
- Olivia Heights
- OLT 12 DIV B LORRAINE HEIGHTS PLUS 1/2 ADJ VAC ALL
- Oltorf Village Sec 02
- OLTORF VILLAGE SEC 2
- Olympic Heights
- Olympic Heights Sec 02
- Olympic Heights Sec 03
- Olympic Heights West
- One Barton Place Condo
- One Barton Place Condominiums
- One Oak
- One Oak Condominiums
- One Oak Condos
- One Onion Creek Condo Amd
- Onion Creek
- Onion Creek – Shadow Lane Townhomes
- Onion Creek Add
- Onion Creek Sec 01
- Onion Creek Sec 02 Amd
- Onion Creek Sec 03
- Onion Creek Sec 05-A
- Onion Creek Sec 05-B
- Onion Creek Sec 06-A
- ONION CREEK SEC 1
- Onion Creek, Courtyard At Onion Creek
- Opal Meadows
- Orange Grove Condo Amd
- Orange Tree Condo
- Orange Tree Condominia Amd
- ORANGE TREE CONDOMINIA AMEND
- Orange Tree Condominia Amended The
- Orchard Condo
- Orchard Condominiums
- Orchard Condos
- Oreilly James
- Original City of Austin
- Orleans Harbor Condo Amd
- Outlot 3, Division ‘O’
- Overlook At Flintrock Falls
- Overlook Condo
- Overlook Condominiums The
- Overlook Estates Ph 01
- Overlook Estates Ph II The
- Owen Park
- Oxford Place Condo
- P J Lawless Add Division A
- Pace D C Add
- Paddock Condo Amd
- Painted Bunting
- Painted Bunting Ph 02
- Palladian
- Palladian Condo
- Palm Condo The
- Palmetto Condo
- PALMETTO CONDOMINIUMS
- Palomba @ Flintrock
- Palomino Park Sec 03
- Palomino Park Sec 05-A
- Pan Texas East
- Pannell Place
- Panorama Ranch Sec 01
- Paragon Condo Amd
- Parapet Condo
- Park At Battle Bend Amd
- Park At Crestview Ph 02 Amd
- Park At Crestview Ph 03 Amd
- Park At Duval
- Park At Quail Creek Amd
- Park At Quail Creek Sec 02
- Park At Spicewood Spgs Ph
- Park At Spicewood Spgs Ph 01 Sec 02
- Park Ave Condos
- Park Avenue Condominiums
- Park East
- PARK EAST CONDOMINIUMS
- Park Forest
- Park Forest Sec 01
- Park Forest Sec 02
- Park Forest Sec 04
- Park Forest Sec 05
- Park Forest Sec 06
- Park Forest Sec 07
- Park Forest Sec 1
- Park Hill
- Park Place
- Park Place 01
- Park Place At Riverside Amd
- Park Place Condo
- Park Ridge
- PARK RIDGE SUBD
- Park View
- Park West At Circle C Ph 01
- Park West At Circle C Ph 02
- Park West Condo
- Park West Condo Residence
- PARK WEST CONDOMINIUM RESIDENCES
- Park/Fifty One East Condos
- Parke Anderson Mill
- Parke At Anderson Mill
- Parke At Travis Country Condom
- Parke Sec 01
- Parke Sec 02
- Parke Sec 02 Grandview Hills
- Parke Sec 05
- Parke Sec 06
- Parker
- Parker Creek
- Parker Creek Ranch
- Parker Heights Sec 01b Amd
- Parker Heights Sec 04
- PARKER HEIGHTS SEC 1B AMENDE
- Parker Ranch
- Parker Ranch Condo
- Parker Ranch Condominiums
- Parker Square Condo
- Parker Station
- Parker Station 40’s
- Parker Station 40s
- Parkinson Place Resub 1 Residence
- Parkridge Gardens
- Parkside at Mueller
- Parkside At Slaughter Creek SE
- Parkside/Mueller Condos
- Parkwood Sec 02
- Parkwood Sec 03
- Parkwood Sec 04
- Parkwood Sec 05
- Parliament Place Sec 02
- Parmer Crossing
- Parmer Lane Heights Sec 01
- Parmer Village
- Parmer Village Condo
- Parmer Village Condos
- Parmer Village Townhome
- Parmer Village Townhome Condominiums
- Parmer Village Townhome Condos
- Parmer Village Townhomes
- Parmer Village Twnhm Condos Bldg 1
- Parmer Village Twnhm Condos Bldg 19
- Parmer Village Twnhm Condos Bldg 2
- Parmer Villas
- Parmer Villas Condo
- Parmer Xing Condos
- Parsons Sec 03
- Parten
- Parten 65s
- Parten 75s
- Parten 85s
- Parten Ranch
- Parten Ranch Ph 2
- Parten Ranch Ph 4
- Parten Ranch Ph 5
- Parten: 65ft. lots
- Patterson Heights
- Patterson Place 02
- Patterson Place On Crystal Creek
- Pattons Add Sec 03
- Paulson Add
- Paxton
- Payne Lloyd W
- Peacock View Condo Amd
- Pearl At 22 01 02 Condo
- Pearl Street Condo Ph 01
- Pearson
- Pearson Place
- Pearson Place at Avery Ranch
- PEARSON PLACE ENCLAVE CONDO
- Pearson Place Enclave Condos
- Pearson Place Sec 01
- Pearson Place Sec 1
- Pearson Place Sec 2
- Pearson Place Sec 3
- Pearson Place Sec 4
- Pease Estates
- Pease Frank E
- Pease Place Condominiums
- Pecan Garden
- Pecan Grove
- Pecan Orchard
- PECAN PARK CONDOMINIUMS
- Pecan Park Garden Estates
- Pecan Springs
- Pecan Springs Springdale
- Pecan Square Condo
- PECAN VALLEY
- Pecan Walk Condo
- PECAN WALK CONDOMINIUMS THE
- Peck
- Peck R H
- Peck RH
- Pecos Square Condo
- Pedernales Condo Amd
- Pemberton Heights
- Pemberton Heights Sec 01
- Pemberton Heights Sec 02
- Pemberton Heights Sec 03
- Pemberton Heights Sec 08
- Pemberton Heights Sec 10
- Penick Place
- Peninsula On Lake Austin The P
- Penn Place Cottages
- Penn Place Cottages Sec A
- Penn Smyth
- Pennsylvania Condominiums
- Penthouse Condo
- PENTHOUSE CONDOMINIUMS
- Peppertree Park Sec 01
- Peppertree Park Sec 03
- Peppertree Park Sec 05
- Peppertree Park Sec 07-A
- Peppertree Park Sec 08
- Perkins Trails
- Perkins Valley Sec 02
- Perlitz
- Persimmon Hollow Condo Amd
- Persimmon Point
- Peters Add
- Peterson
- Pharo Condo
- Pheasant Run Sec 01
- Pheasant Run Sec 02
- Phillips
- Piazza Navona Condo
- Pickle Clara
- PID# 191241
- Pilot Knob
- Pinnacle At North Lakeway Condo
- Pinnacle Condominiums
- Pioneer Crossing
- Pioneer Crossing East
- Pioneer Crossing East Sec 04
- Pioneer Crossing East Sec 05
- Pioneer Crossing East Sec 07
- Pioneer Crossing East Sec 09
- Pioneer Crossing East Sec 10
- Pioneer Crossing East Sec 3A
- Pioneer Crossing Ph A Sec 03
- Pioneer Crossing West
- Pioneer Crossing West Sec 02
- Pioneer Crossing West Sec 03 Amd
- Pioneer Crossing West Sec 04
- Pioneer Crossing West Sec 05
- Pioneer Crossing West Sec 06
- Pioneer Crossing West Sec 07
- Pioneer Crossing West Sec 10
- Pioneer Crossing West Sec 11
- Pioneer Crossing West Sec 3 Am
- Pioneer Crossing West Sec 3 Amended Plat
- Pioneer Crossing West Sec 8B
- Pioneer Crossing West Sec 9a
- Pioneer Crossing West Sec 9B
- Pioneer Hill
- Pioneer Hill Sec 2
- Pioneer Hill Sec 3
- Pioneer Hill Sec 5
- Pioneer Xing East Sec 17
- Pioneer Xing East Sec 3A
- Pipkin Add 02
- PIPKIN ADDN NO 2
- Pitts
- Placidena
- Plainview Heights
- Plainview Heights Resub
- Plaza Hernando De Cortez Condo
- Plaza Lofts Condo Amd
- Plaza Place
- Plaza Twnhms At Avery Ranch Condo
- Plaza Twnhms/Avery Ranch
- Pleasant Grove Add
- Pleasant Valley Sec 01
- Pleasant Valley Sec 02
- Pleasant View Add
- Pleasant View Addn
- Point Vista
- Point Vista Sec 04-A
- POINT VISTA SEC 3 A
- Point West Of Westover Hills S
- Pointe 360
- Pointe 360 Condominiums
- Pointe 360 Condos
- Pointe Condo Amd
- Pointe Condominiums Amended The
- Polis Addition
- pond spring
- Popes
- Popes Resub
- Porter Heights
- Posada Del Rey Condo Amd
- POSADA DEL REY CONDOMINIUMS
- Posner Add
- PRADO
- Prado Ranch
- Prado Ranch Ph 1
- Prado Ranch Ph 2
- Prado Ranch Sub Ph 2
- Presbytarian Church of the H
- Preservation Ranch
- Preservation Square Condo
- Preserve At Barton Creek
- Preserve at Four Points
- Preserve At Four Points Centre
- Preserve at Four Points Centre Condominiums
- Preserve At Lakeway Villas Con
- Preserve at Oak Hill
- Preserve/Oak Hill
- Preserve/Riverside Sec 2
- Presidio Condos
- Presidio Station
- Preston Oaks Sec 01
- Preston Oaks Sec 02
- PRESTON OAKS SEC 3
- PRESTON PARK
- Preston Park Sec 1
- Preston Village
- Preswyck Hills Sec 01
- Preswyck Hills Sec 03
- Preswyck Hills Sec 04
- Preswyck Hills Sec 05
- PRIESTLY J
- PRIMROSE NO 1 ADDN
- Prock G A
- Prock G C
- Prospect Park Ph 1
- Proutt Woodie
- Provence
- Provence – 60′
- Provence Ph 1 Sec 5A
- Providence Condos 7611
- Province Condominiums
- PUBLIC CONDOMINIUMS AMENDED
- Public Condos
- Public Condos Bldg 1
- Public Condos Bldg 2
- Public Condos Bldg 3
- PUBLIC Lofts
- Putnam Square Condominiums
- Quadrangle Condo Amd
- QUAIL CREEK
- Quail Creek Ph 02 Sec 01
- Quail Creek Ph 02 Sec 02
- Quail Creek Ph 02 Sec 03
- Quail Creek Ph 03 Sec 03
- Quail Creek Ph 03 Sec 04
- Quail Creek Ph 04 Sec 01
- Quail Creek Ph 04 Sec 02
- Quail Creek Sec 01
- Quail Creek Sec 02
- Quail Creek Sec 03 Ph 02
- Quail Creek Sec 04
- Quail Creek Sec 05 01 Resub
- Quail Creek West Ph 02 Sec 01
- Quail Creek West Ph 02 Sec 03
- Quail Creek West Ph 02 Sec 05
- Quail Creek West Ph 02 Sec 08
- Quail Creek West Ph 02 Sec 09
- Quail Creek West Ph 02 Sec 10
- QUAIL CREEK WEST PHS 2 SEC 3
- Quail Creek West Sec 01
- QUAIL CREEK WEST SEC 3
- Quail Hollow
- Quail Hollow Garden Homes Sec
- Quail Hollow Garden Homes Sec 02 Amd
- Quail Hollow Sec 01
- Quail Hollow Sec 04
- Quail Hollow Sec 04-A
- Quail Hollow Sec 05-A
- Quail Hollow Sec 06-A
- Quail Hollow Sec 06-B
- Quail Hollow Sec 07
- Quail Hollow Sec 08 Amd
- Quail Hollow Sec 2
- QUAIL HOLLOW SEC 4
- QUAIL HOLLOW SEC 7
- Quail Ridge
- Quail Run Condo Amd
- Quail Valley Sec 01
- Quarry In Enfield Condo
- Quarry In Enfield Condominiums
- Quarters Condominiums
- Quarters Condos
- Quatro Add
- Quercus Condo
- R R On Creek Condo Amd
- R45QA – Apartment Complex-Lakeline Area
- Rabb Inwood Hills
- Raceway Single Family Sub Sec
- Radiance Ph I
- Rainey District
- RAINEY RESIDENCES CONDOS
- Rainey Street
- Rainey Street Historic District
- Ramendu at Lyndon Ln Condominiums
- Ramsey Park Condo
- Ramsey Place
- Ranch At River Place Condo The Am
- Ranch At River Place Condomini
- Rancho Alto Ph 01
- Rancho Alto Ph 02
- Rancho Alto Ph 03
- Rancho Alto Sec 05
- Ravel & Gerling Add
- Ravenscroft Twnhms Amd
- Raymond
- Rectors
- Red Door Townecourt Condo Amd
- Red River North
- Red River North Condo Amd
- Redbud Park
- REES FAMILY CONDOMINIUMS
- Reflections Of Walnut Creek
- Reflections Of Walnut Creek I
- Reflections Of Walnut Creek Ii
- Reflections Of Walnut Creek III
- Reflections of Walnut Creek III Condo
- Reflections Walnut Creek 01
- Reflections Walnut Creek 03 Condo
- Reflections Walnut Ridge Condo
- Regal Oaks
- Reindale Acres
- Remington Condo
- Reserve At Avery Ranch 03
- Reserve At Hudson Bend
- Reserve at McKinney Falls
- Reserve At Slaughter Creek
- Reserve At Southpark Meadows
- Reserve At Southpark Meadows I
- Reserve At Southpark Meadows P
- Reserve/Southpark Mdws
- Residential Condo Amd 360
- Resubdivision of Lot 6, BLK 1 of CrestHaven Add’n
- Retreat At Tech Ridge Sec 1 Th
- Retreat At Tech Ridge Sec 2 Th
- Retreat At Tech Ridge Sec 3
- Reuben Hornsby Surv Abs # 17
- Reunion Ranch
- Reunion Ranch Ph 2 Sec 2
- Reunion Ranch Ph 2 Sec 3
- Reunion Ranch Ph Three Sec Three
- Reunion Ranch Ph Three Sec Two
- Reunion Ranch Sec Two
- Reveile Add 02
- Richardson
- Richardson Sub
- Richardsons
- Richcreek Road
- Riddle C H acre .33
- Riddle Road Duplexes
- Ridge At Alta Vista
- Ridge At Alta Vista Resub
- Ridge At Balcones
- Ridge At Barton Creek
- Ridge At Lost Creek Condo
- Ridge At Lost Creek Condominiums Th
- RIDGE AT SLAUGHTER
- Ridge at Slaughter Condominiums
- Ridge At Thomas Spgs
- RIDGE OAK PARK
- Ridge/Alta Vista
- Ridgelea
- Ridgelea Court 02 Condo
- Ridgelea Court Condo
- Ridgetop
- Ridgetop Annex
- Ridgetop Annex Amd Of
- Ridgetop Condo
- Ridgetop Fourth Addn
- Ridgetop Gardens
- Ridgetop Gdns
- Ridgeview
- Ridgeview Ph 1
- Ridgeview Ph II
- RIDGEWOOD VILLAGE SEC 2
- Rileys
- Rio Grande Condo
- Rio Vista Add
- River Bend
- River City Lofts Condo Amd
- River Crossing Condo
- River Dance Ph 03
- River Dance Ph 05
- River Dance Ph 6-B – Steiner Ranch
- River Oak Lake Estates Sec 01
- River Oak Lake Estates Sec 02
- River Oak Lake Estates Sec 05
- River Oak Lake Estates Sec 06
- River Oak Lake Estates Sec 07
- River Oaks Sec 01
- River Place
- River Place Sec 02a
- River Place Sec 03-A
- River Place Sec 04
- River Place Sec 05 Amd
- River Place Sec 06
- River Place Sec 07A
- River Place Sec 08
- River Place Sec 10
- River Place Sec 11
- River Place Sec 13
- River Place Sec 22
- River Place Sec 7a
- River Place, Preserve At Sec 02
- River Pointe
- River Ranch Mh Park
- river ranch Mp
- River Ridge
- Riverbend at University Hils
- Riverbend Sec 03a At University Hills
- Riverbend Sec 1 At Universityh
- Riverbend Sec 3B Resub At Univ
- Riverbend Sec 3c At University
- Rivercrest Add Sec 01
- Rivercrest Add Sec 02
- Riverside
- Riverside Meadows
- Riverside Meadows Sec 01
- Riverside Meadows Sec 02
- Riverside Villas
- Riverside Villas Amd
- Riverview Add
- Riverwalk Condo Amd
- Rivoli Condo
- Rob Roy
- Rob Roy On Creek Sec 01
- Rob Roy On Creek Sec 05
- Rob Roy On Lake Sec 01
- Rob Roy On Lake Sec 02
- Rob Roy On The Creek
- Rob Roy Ph 02
- Rob Roy Ph 03
- Rob Roy Rim Condominiums
- Rob Roy West
- Robbins Place Condo Amd
- Roberta L Martin
- Roberts Terrace
- Robertson Geo. L.
- Robertson George L
- Robertson S & L M South Pt
- Robertson Susan M Estate
- Robinson & Concorida Condomini
- Rockway
- Rocky Creek
- Rocky Creek Ranch
- Rocky Creek Ranch Sec 01
- Rocky Creek Ranch Sec 1
- Rodrigues Willie G
- Rolling Hills West
- Rollingwood
- Rollingwood Sec 01
- Rose Glen
- Rosedale
- Rosedale B
- Rosedale D
- Rosedale G
- Rosedale H
- Rosedown
- Roseville on Manor
- Roseville on Manor Condominiums
- Rosewood
- Rosewood Condo
- Rosewood Village
- Rosewood Village Sec 08 Amd
- Rosewood Village Sec 11
- Rough Hollow
- Rough Hollow – Lakeway Highlands PH2 Sec 1B
- Rough Hollow / The Peninsula
- Rough Hollow highlands
- Rough Hollow Lakeway Highlands
- Rough Hollow Sec 07
- Rough Hollow Sec 07 Amd
- Rough Hollow Sec 1 Amdlt1-6,11
- Rough Hollow Sec 10
- Rough Hollow Sec 3 Condo
- Rough Hollow Sec 5A
- Rough Hollow Sec 5C
- Rough Hollow Vineyard Condos
- Rough Hollow, Lakeway Highlands Ph 1 Sec 3
- Rough Hollow, Lakeway Highlands Ph 1 Sec 5
- Round Mountain
- Round Mountain Estates 02
- Round Rock 10 05
- Roy & Ec Logsdon Sub
- Royal Oak Estates Sec 01
- Royal Oak Estates Sec 03
- Royal Oak Estates Sec 03a
- Royal Oak Estates Sec 04
- Royal Oak Estates Sec 05
- Royal Oak Estates Sec 07
- Royal Orleans North
- Royal Orleans North Condo Amd
- Royal Orleans North Condominiums
- Rreef Domain Lt Q1 & Lt R Sub
- Rural
- Rutland Village Sec 01
- Rutland Village Sec 02
- S and F
- S03980
- S11931 – TIMMERMANN PH 1,
- S13460
- S6545 – THE POLO CLUB AT ROOSTER SPRINGS PHASE 1
- Sabinal Condo
- SABINAL CONDOMINIUMS
- Sabine On 05 Residential Condo
- Saddlewood Estates Sec 02
- Saddlewood Estates Sec 03
- Sage Condo
- Sage Creek
- Sage Meadow Condo Amd
- Sage Meadow Condo Amd plus 0.6135% Int in COM Area
- Salado Apartments
- Salado Condo
- Salado Condominiums
- Salem Center Resub Of Lt B-1
- Salem Village
- Salem Walk Sec 02
- Salem Walk Sec 03
- SALEM WALK SEC 1
- Salina Street East Condo The
- Saltillo Lofts Condo Amd
- Samon Add
- Sampson
- Samuel W Hamilton League 16 Ab
- San Antonio Road Add Sec 03
- San Felipe Twnhms
- san gabriel
- San Gabriel Place Condo Amd
- San Gabriel West Condo
- SAN GABRIEL WEST CONDOMINIUM
- San Leanna Estates
- San Pedro Flats
- San Pedro Oaks Condo
- San Pedro Square
- Sanctuary
- Sanders 02
- Santa Monica Park
- Santa Monica Park Sec 02
- Santa Monica Park Sec 03
- Santa Monica Park Sec 1
- Santiago Del Valle 10 League G
- Santiago Del Valle Abs 24
- Santiago Del Valle Grant
- Santiago Del Valle Grant Ab
- Santiago Del Valle Grant Abs #
- Santiago Del Valle League 10
- Santiago Del Valle Surv Abs #2
- Saratoga Hills
- Saratoga Hills Key Ranch Sec 2
- Saratoga Point
- Satsuma 53 Condominiums
- Savannah Condo
- Scenic Brook Estates
- Scenic Brook Estates Sec 01
- Scenic Brook Estates Sec 02 Re-Amd
- SCENIC BROOK ESTATES SEC 1
- Scenic Brook Estates Sec 2 Re-
- Scenic Brook West Comm 01-A
- Scenic Brook West Sec 01
- Scenic Brook West Sec 02 Ph 02
- Scenic Brook West Sec 03 Ph 01
- Scenic Brook West Sec 03 Ph 02
- SCENIC BROOK WEST SEC 1
- Scenic Hills Estates
- Scenic Pass
- Scenic Point Ph 02
- Scenic View West Sec 02
- Scenic View West Sec 04
- Schieffer Place Sec 02
- Schutze Resub Of Tr B Of Is
- Schwinge
- scofield farms
- Scofield Farms Mdws Condo
- Scofield Farms Meadows
- Scofield Farms Meadows Condominiums
- Scofield Farms Ph 01 Sec 01
- Scofield Farms Ph 01 Sec 02-A
- Scofield Farms Ph 02 Sec 01
- Scofield Farms Ph 03 Sec 03
- Scofield Farms Ph 06 Sec 05
- Scofield Farms Ph 07 Sec 02
- Scofield Farms Ph 08 Sec 01
- Scofield Farms Ph 08 Sec 03
- Scofield Farms Ph 08 Sec 04
- Scofield Farms Ph 08 Sec 07
- Scofield Farms Ph 10 Sec 01
- Scofield Farms Ph 10 Sec 02
- Scofield Farms Phs 10 Sec 2
- Scofield Farms Phs 8 Sec 2
- SCOFIELD FARMS PHS VII SEC I
- Scofield Ph 06 Sec 03
- Scofield Ph 06 Sec 04
- Scofield Ph 07 Sec 03-A
- Scofield Ridge Condo Amd
- Scofield Ridge Condoes
- SCOFIELD VILLAS
- Scofield Villas Amd
- seaholm
- Seaholm District
- Seaholm Residences
- Seaholm Residences Residential
- Searight Village
- Searight Village Condo
- see Legal Description
- see remarks
- Senate Hills Sec 01
- Sendera Sec 12-A
- Sendera Sec 12-B
- Sendera Sec 16
- Sendera Sec 17a
- Sendera South
- Sendera South Sec 01
- Sendera South Sec 02
- Sendera South Sec 03
- Sendero Hills
- Sendero Hills Ph 03 Amd Of
- Senna Hills
- Senna Hills Sec 02
- Senna Hills Sec 11
- Serene Hills
- Serene Hills Ph 3wa
- Serene Hills Ph 3Wa & Rep
- Serene Hills Ph 3Wb Amd Lts
- Serene Hills Sub Ph 2E
- Serene Hills Sub Ph 2E; LAKEWAY
- Serene Hills Sub Ph 3E
- Settler Condominiums
- Settler South Congress
- Seven Oaks Sec 05
- Seventeenth Street Condo
- Shadow Hill Condo
- Shadow Lawn
- Shadow Oaks Twnhms
- Shadowridge Crossing Sec 12
- Shadowtree Condo
- Shady Hollow
- Shady Hollow Add Sec 02 Ph 01
- Shady Hollow Estates Sec 01
- Shady Hollow Estates Sec 2 Ame
- Shady Hollow Office Condo Amd
- Shady Hollow Sec 02-A Ph 02
- Shady Hollow Sec 03-A Ph 01
- Shady Hollow Sec 03-B
- Shady Hollow Sec 04
- Shady Hollow Sec 05 Ph 02
- Shady Hollow Sec 06 Ph A
- Shady Hollow Sec 06 Ph B
- Shady Hollow Sec 06 Ph C
- Shady Hollow Sec 06 Ph D
- Shady Hollow Sec 3-a Phs 2
- Shady Hollow West
- SHAMROCK AVENUE CONDOMINIUMS
- Shannons James R Resub
- Sheldon
- Sheldon 230 Sec 01 Ph 01
- Sheldon 230 Sec 01 Ph 02
- Sheldon 230 Sec 02 Ph 02
- Sheldon 230 Sec 02 Ph 03
- Sheldon 230 Sec 02 Ph 04
- Sheldon 230 Sec 02 Ph 05
- Sheldon 230 Sec 02 Ph 8A
- Sheldon 230 Sec 2 Ph 6
- Sheldon 230 Sec 2 Ph 7
- Shell
- Shelley Heights
- Shelley Heights 02
- Shelley N G
- Shepherd Mountain
- Shepherd Mountain Ph 02
- SHEPHERD MOUNTAIN PHS 2
- Sheppard S R Jr Sec 01
- Sherry Dale
- Sherry-Dale
- Sherwood Forest
- Sherwood Oaks
- Sherwood Oaks Sec 03
- Sherwood Oaks Sec 04
- Sherwood Oaks Sec 05
- Sherwood Oaks Sec 06
- SHERWOOD OAKS SEC 3
- Shiloh
- Shiloh Ph 02 Sec 01 Amd
- Shiloh Ph 03
- Shiloh Ph 03 Sec 02
- Shiloh Ph 04 Sec 01
- SHILOH PHS III
- SHILOH PHS IV SEC 1
- Shiloh Subdivision
- Shinoak Valley Sec 01
- Shoal Creek Park 02
- Shoal Creek Unit 4 Professional Office
- Shoal Terrace
- Shoal Village Sec 02
- Shoal Village Sec 03
- Shoal Village Sec 04
- Shoalcrest Oaks
- Shoalmont Add
- Shoalmont Add Resub
- Shoalmont Add Sec 02
- Shoalmont Add Sec 03
- Shoalmont Add Sec 04
- Shoalmont Addition
- Shoalmont Allandale
- Shoalwoods Add Sec 02
- Shoalwoods Annex
- Shore A Condo Amd The
- Shuddemagens
- Sierra Oaks 02
- Sierra Oaks 03 Sec 01
- Sierra Vista 02
- Sierra Vista 03 Ph 01
- Sierra Vista Amd
- Sierra Vista II
- Sifuentez Frank
- Signal Hill
- Signal Hill I
- Signal Hill Sub
- Silliman
- Silver Spur Ranchettes Sec 02
- Silver Spur Ranchettes Sec 1
- Silver Spur Ranchettes Sec 2 R
- Silverado Condo Amd
- Silverado Condo Amd Ph 02
- Silveredge Crk Sub
- Silverstone Ph 01 Sec 01
- Silverstone Ph 01 Sec 02
- Silverstone Ph 02 Sec 01
- Silverstone Ph 02 Sec 02
- Silverstone Ph 2 Sec 2 Resub
- Silverton Heights
- Silverton Heights Sec 02
- Simms Paul O
- Simpson Archie H Resub
- Six Twelve Park Place Condominiums
- Six Twenty Oaks
- Sixth & Brushy
- Sky Forest
- SkyBridge Lofts
- Skybridge Lofts Amd
- Skyland
- Skyland Terrace
- Skyline
- Skyline 2D Ph 1
- SKYLINE ON BERKMAN
- Skyridge Residential Condo
- Skyview Sec 01
- Skyview Sec 03
- Skyview Sec 1
- Slataper Add Sec B
- Slaughter Creek Acres
- Sleepy Hollow
- Smith & Abrahamson
- Smith A F Add
- Smith RG
- Smithfield
- Smithfield Condominiums
- Smithfield Condos
- Smithfield Condos Bldg 15
- Smithfield Condos Bldg 16
- Smithfield Condos Bldg 4
- SMITHFIELD II CONDOMINIUMS
- Smiths J W Western Oaks 1-B
- Smokey Mountain Oaks
- Smyth Add
- SOCO Condominiums Plus
- Sola City Homes
- Solavera Condo
- Soma
- SoMa Village
- Soma Village Condominiums
- Somerset Condo
- Somerset Estates
- Sonesta West Sec 01a
- Sonesta WestSec 1a
- Sonora
- South 05 Amd
- South Acre Resub Of Lt A
- South Austin Indust Park Ph A
- South Center Subd
- South Congress
- South Creek Sec 01
- South Creek South Sec 02 Amd
- South Creek South Sec 2
- South Fork Estate
- South Gate Terrace Sec 01
- South Heights
- South Highlands Amd
- South Lamar
- South Lamar Bus Park
- South Lund Park Sec 01
- South Lund Park Sec 01 Amd
- South Lund Park Sec 05
- South Lund South
- South Meadows
- South Oak
- South One Hundred Eighty Three
- South Park Sec 01
- South Park Sec 02
- South Shore Pointe
- South Terrace Add
- South View Estates
- Southampton
- Southampton Hills 03
- Southampton Sec 01
- Southampton Sec 02
- Southampton Sec 03-A
- Southbreeze
- SOUTHBREEZE SUBD
- Southbridge Villas
- Southbridge Villas Amd
- Southbridge Villas Ph Ii Amd
- Southern Oaks Sec 05
- Southern Oaks Sec 07
- Southern Oaks Sec 07-B
- SOUTHERN OAKS SEC 7
- Southgate Terrace
- Southland Oaks Sec 03-A
- Southland Oaks Sec 03-B
- Southland Oaks Sec 03-C
- Southland Oaks Sec 04 Ph A
- Southland Oaks Sec 04 Ph C
- Southland Oaks Sec 04 Ph E
- Southland Oaks Sec 05
- SOUTHOAK CONDOMINIUMS
- SOUTHPARK MEADOWS
- Southridge
- Southridge Sec 01
- Southridge Sec 02
- Southridge Sec 04
- Southridge Sec 05
- Southridge Sec 06
- Southridge Sec 4
- Southridge West
- Southstone
- Southway Condominiums
- Southwest Gate Add
- Southwest Hills Sec 02 & 03
- Southwest Hills Sec 04
- Southwest Oaks Condo
- Southwest Oaks Duplex Condomin
- Southwest Oaks Ph 02
- Southwest Oaks Sec 01
- SOUTHWEST OAKS SEC 1
- Southwest Park
- Southwest Park Sec 02 Amd
- Southwest Terrace Sec 01
- Southwind Add Sec 02
- Southwood
- Southwood Sec 01
- Southwood Sec 02
- Spaces 2525 Condo
- Spanish Oaks
- Spanish Oaks / Hillside
- Spanish Oaks Condo Amd
- Spanish Oaks East Village
- Spanish Oaks Sec XI
- Spanish Oaks/Barton Creek Preserve
- Spanish Oaks/Hillside
- Sparks
- SPARKS & MOORE SUBD
- Spear G W Sur 7 Abs 697
- Speckels & Staehely Add
- Speedway Annex
- Speedway Condo
- Speedway Condo Amd The
- Speedway Condominiums
- Speedway Heights
- Speedway Park
- Spencer R W Add
- Speyside Sec 01
- Speyside Sec 02
- SPICEWOOD AT BALCONES VILLAG
- Spicewood at Balcones Village
- Spicewood At Balcones Villages
- Spicewood At Bull Creek Sec 02
- Spicewood At Bullcreek Sec 01
- Spicewood At Bullcreek Sec 03 Ph B
- Spicewood At Bullcreek Sec 04
- Spicewood At Bullcreek Sec 3 P
- Spicewood Estates Sec 01
- Spicewood Estates Sec 02
- Spicewood Estates Sec 03
- Spicewood Forest
- Spicewood Forest Office Condom
- Spicewood Hills Sec 02
- Spicewood Village Condo Amd
- Spicewood Vista Condo Amd
- Spillar & Greenwood Add
- SPILLAR & GREENWOOD ADDN
- Spillman J
- Spillman Ranch
- Spillman Ranch Ph 01 Sec 02
- Spillman Ranch Ph 01 Sec 06
- Spillman Ranch Ph 02 Sec 01
- Spillman Ranch Ph 03
- Spillman Ranch Ph 1 Sec 9
- Spillman Ridge
- Spring Condo Amd
- Spring Condominium
- Spring Creek Preserve
- Spring Lane Sub
- Spring Valley
- Springdale
- Springdale Add
- Springdale Addn
- Springdale Crk Condo
- Springdale Crk Condos
- Springdale Flats
- Springdale Hills
- Springdale Hills Sec 02
- Springdale Hills Sec 04
- Springfield
- Springfield Ph B Sec 02
- Springfield Ph B Sec 03
- Springfield Ph B Sec 05
- Springfield Ph B Sec 06
- Springfield Ph C
- Springfield Sec 01
- Springfield Sec 2
- Springfield Sec 3
- Springfield Sec 4
- Springfield Sec 7
- Springfield Sec 8b
- Springfield Sec 9
- Springhollow Condo
- Springhollow Condo Amd
- Springs Of Walnut Creek Ph Ii
- Springs Of Walnut Creek Ph III
- Springwood Garden Homes Ph 02 Unit 39 Bl
- Springwoods Ii-A Rev 1981
- Springwoods II-D
- Springwoods Sec 01
- Springwoods Sec 01a Amd 1981
- Springwoods Sec 02A Rev 1981
- Springwoods Sec 02e
- Springwoods Sec 02F
- Springwoods Sec 02G
- Springwoods Sec I-A Amd 1981
- Spurlin J C
- Spyglass
- Spyglass at Barton Creek
- Spyglass/Barton Crk Condos
- St Andrews
- St Andrews Place
- St Anthony Oaks Sec 02
- ST ANTHONY VILLAGE SEC 02
- St Anthony Village Sec 03
- St Charles Condo Amd
- St Charles Condominiums Amended
- ST JAMES CONDOMINIUMS AMENDE
- St Johns
- St Johns College Add
- St Johns College Addn
- St Johns Home Add
- St Johns Home Addn
- St Louis Heights
- St Thomas Condo Amd
- ST THOMAS CONDOMINIUMS THE A
- St Thomas Condominiums The Amended
- St Tropez
- St Tropez Condo
- St Tropez Resub Amd
- St. Elmo District
- St. Johns
- ST. JOHNS COLLEGE ADD
- St. Johns/Coronado Hills
- St.Johns
- Stablewood At Slaughter Creeks
- Stablewood At Slaughter Creeksec 03
- Stablewood At Slaughter Creeksec 04
- Stanhope Place
- Star Light Terrace
- Star West Condo
- Star West Condos
- Stark Add
- Stark Frank
- Starkey
- STARLITE LOFTS CONDOMINIUMS
- Stassney Lane Condo Amd
- STASSWENDER
- Stasswender Add
- Station St. Elmo
- Steck Add 02
- Steck E L
- Steiner
- Steiner Ranch
- Steiner Ranch – River Dance Ph 6a
- Steiner Ranch Parkside
- Steiner Ranch Ph 01 Sec 01
- Steiner Ranch Ph 01 Sec 02-A
- Steiner Ranch Ph 01 Sec 03
- Steiner Ranch Ph 01 Sec 04d
- Steiner Ranch Ph 01 Sec 04e
- Steiner Ranch Ph 01 Sec 04G
- Steiner Ranch Ph 01 Sec 05b
- Steiner Ranch Ph 01 Sec 06b
- Steiner Ranch Ph 01 Sec 06c
- Steiner Ranch Ph 01 Sec 06F
- Steiner Ranch Ph 01 Sec 08
- Steiner Ranch Ph 01 Sec 09
- Steiner Ranch Ph 01 Sec 10a
- Steiner Ranch Ph 01 Sec 10C
- Steiner Ranch Ph 01 Sec 10D
- Steiner Ranch Ph 01 Sec 5B
- Steiner Ranch Ph 01 Sec 7A
- Steiner Ranch Ph 01 Sec 7B
- Steiner Ranch Ph 02 Sec 03-B
- Steiner Ranch Ph 02 Sec 03-D
- Steiner Ranch Ph 02 Sec 04a
- Steiner Ranch Ph 02 Sec 04B
- Steiner Ranch Ph 02 Sec 04D
- Steiner Ranch Ph 02 Sec 05
- Steiner Ranch Ph 1 Sec 1
- Steiner Ranch Ph 1 Sec 10d Rs
- Steiner Ranch Phs 1 Sec 3
- Steiner Ranch Phs 1 Sec 8
- Steiner Ranch Phs 2 Sec 3-d
- STEINER RANCH PHS 2 SEC 4D
- Steiner Ranch River Dance Ph 03
- Steiner Ranch- River Dance Phs 3
- Steiner Ranch, Longhorn Canyon
- Steiner Ranch, McCormick Ranch on Lake Austin
- Steiner Ranch/UTGolf Course
- Stenger A D Add
- Sterling Crest Condo Am
- Sterling Crest Condos
- STEWART ANNIE SUBD SEC I
- Stewart B K
- Stillhouse Canyon Condo
- Stillhouse Canyon Condo Amd
- Stillhouse Canyon Condominiums Amen
- Stinson Oaks
- STIRLING BRIDGE
- Stirling Bridge Sec 01
- Stirling Bridge Sec 02
- Stirling Bridge Sec 4
- Stirling Bridge Sec 5
- Stone Gate
- Stoneledge 02 Condo Ph 01
- Stoneledge 02 Condo Ph 02 Amd
- Stoneledge Condo Ph 01-02
- Stoneleigh Condo
- Stoneleigh Condo Amd
- STONELEIGH CONDOMINIUMS
- Stonewall Condos
- STONEY WOOD
- Stratford Heights
- Stratford Hills Sec 02
- Stratford Place
- Street Place Condo
- Struhall James F
- Struhall Lillian P
- Stuart & Mair
- Summer Creek
- Summer Wood Ph 02 Sec 03
- Summer Wood Sec 01 Amd
- Summerhouse Condo
- Summerrow
- Summertree Condo
- Summerwind Townhome Condo Amd
- Summit At University Hills
- Summit at West Rim
- Summit At West Rim On Mount Larson
- Summit Condo Amd
- Summit Oaks
- Summit Oaks Annex Sec 03 Ph 02
- Summit Oaks Sec 02
- Sun Terrace
- Sunchase Condo Amd
- Sunchase Condominiums
- SUNCHASE CONDOMINIUMS AMENDE
- Sunny Ridge Add
- Sunnydale
- Sunnyvale Villas A Condo
- Sunnyvale Villas A condominiums
- Sunridge Park
- Sunridge Park Condo Amd
- Sunridge Park Sec 01
- Sunrise Country
- Sunset Canyon Sec 4
- Sunset Hill Enfield 02
- Sunset View Sec 01
- Sunset View Sec 03
- SUNSET VIEW SEC 1
- Swansons Ranchettes
- Swede Hill Lofts Condo
- Sweetbriar
- Sweetbriar Condo Amende
- SWEETBRIAR CONDOMINIUMS
- Sweetbriar Garden Homes Condom
- Sweetbriar Garden Homes Condos
- Sweetbriar Village
- Sweetman R L Add
- Sweetwater
- SWEETWATER GLEN
- Sweetwater Glen Condo
- Sweetwater Glen Condo Amd
- Sweetwater Ranch
- Sweetwater Ranch Sec 1
- Sweetwater Ranch Sec 1 Village
- Sweetwater Ranch Sec 1 Village L P
- Sweetwater Ranch Sec 2
- Sweetwater Ranch Sec 2 Village
- Sweetwater Ranch Sec 2 Village B
- Sweetwater Ranch Sec 2 Village E1
- Sweetwater Ranch Sec 2 Village El
- Sweetwater Ranch Sec 2 Village N
- Sweetwater Ranch Sec 2 Village P P
- Sweetwater Ranch Sec 2 Village P2
- Sweetwater Ranch Sec 2 Village P3B
- Sweetwater Ranch Sec 2 Vlgs C
- Sweetwater Sec 1 Village G-1
- Sweetwater Sec 1 Village G-2
- Sweetwater Sec 2 Village F1
- Sweetwater Vlgs C&D Sec 2
- Swisher Add
- Switch Willo Condo
- Sycamore Court
- Sycamore Detached Condo
- Sycamore Detached Condos
- Sylvester Add
- T Burns Sub
- T L 01
- Talisman Condo Amd
- Tanglewild Resub 02
- Tanglewood Estates
- Tanglewood Forest
- Tanglewood Forest Sec 01
- Tanglewood Forest Sec 01 Ph B
- Tanglewood Forest Sec 01 Ph C
- Tanglewood Forest Sec 02 Ph A
- Tanglewood Forest Sec 02 Ph B
- Tanglewood Forest Sec 02 Ph C
- Tanglewood Forest Sec 02 Ph D
- Tanglewood Forest Sec 02 Ph E
- Tanglewood Forest Sec 03
- Tanglewood Forest Sec 04 Ph A
- Tanglewood Forest Sec 04 Ph B
- Tanglewood Forest Sec 04 Ph F
- Tanglewood Forest Sec 05
- Tanglewood Forest Sec 08
- TANGLEWOOD FOREST SEC 2 PHS
- Tanglewood Forest Sec 2 Phs B
- TANGLEWOOD FOREST SEC 5
- Tanglewood Forest Sec 8
- Tannehill
- Tannehill J C
- Tannehill J C Sur 29 Abs 22
- Tarry Town
- Tarry Town 02
- Tarry Town 03
- Tarry Town 04
- Tarry Town 05
- Tarry Town 06
- Tarry Town Place
- Tarrytown
- Tarrytown Oaks
- Tarrytown Oaks Amd Of Lts 214
- Tarrytown Oaks Sec 2
- Tarrytown River Oaks
- Tarrytown, mira loma
- Tarrywood
- Taylor & Williams
- Taylor Estates Sec 01
- TAYLOR J G
- TAYLOR STREET CONDOMINIUMS
- Taylor V E 01
- Taylors
- TBD
- Tempo North
- Ten Thousand North Lamar
- Terra Colinas
- Terra Colinas Ph 1
- Terra Colinas Ph 2
- Terrace 09 Condo Amd
- Terrace At The Preserve Condom
- Terrace At The Preserve Condominiums
- Terrace Drive Condo 308
- Terrace Drive Condo 310
- Terrace On Shoal Creek
- Terrace Park
- Terrace Plaza
- Terraces
- Terrell Heights Sec 03
- Terrio Harry
- Texan Shoal Creek
- Texan Shoal Creek Condos
- Texan Shoal Crk Condos
- Texan Tower
- Texan Tower Condo Amd
- Texan Tower Condos
- Texas Oaks
- Texas Oaks 02
- Texas Oaks 05
- Texas Oaks 06
- Texas Oaks 07-B
- Texas Oaks 09
- Texas Oaks 10
- Texas Oaks Sec 07-A
- Texas Oaks Sec 08-A
- Texas Oaks Sec 09
- Thaxton Place
- Thaxton Road
- The 5 Fifty Five Condos
- THE 710 CONDOMINIUMS
- The Addie
- The Addie Condominiums
- The Allandale Condos
- The Allendale
- The Bend
- The Bend Condominiums
- The Bend Condos
- The Bluffs Of Lost Creek
- The Braxton
- The Canyon Preserve
- The Cascade Condominiums
- The Century
- THE CLIFF OVER LAKE AUSTIN
- The Cottages At Belterra Village
- The Crossing at Wells Branch
- THE DELPHI CONDOMINIUMS
- The Eastwood at Riverside
- The Enclave at Pearson Place
- The Estates of Barr II
- The Estates of Barton Creek
- The Forest
- The Greens
- The Grove
- The Grove Condominiums
- The Heights at Vista Parke
- The Highlands
- The Hills
- The Hills At Escancia
- The Hills of lakeway
- The Hills Of Texas Ph 1
- The Independent
- The Independent Condos
- The Isabella 78704
- The Jocey Condominiums
- The LAAN Condominiums
- The Linden Residences
- The Marian Condominiums
- The Modern Austin Residences
- The Oasis at Midtown
- The Overlook At The Hills Of Texas Estates
- The Owners Club at Barton Creek
- The Park at Harris Ridge
- THE PINNACLE AT GREAT HILLS
- The Pointe Condominiums
- The Polo Club At Rooster Spgs Ph 3
- The Polo Club At Rooster Spgs Ph 4
- The Preserve at Lakeway
- The Ranches at Destiny Hills
- The Residences at W Austin
- The Retreat at Steiner Ranch
- The Ridge at Slaughter Condominium Community Inc.
- The Seventeen
- The Sexton at Sprindale
- The Sexton at Springdale
- The Shore
- The Shore Condominiums
- The Springs Condo Amd
- The Station
- The Summit Condos
- The Trees at Blanco Condominiums
- The Vesper
- The W Residence
- The W Residences
- The Walsh
- Theodore Bissell Surv #18
- THEODORE HEIGHTS LIGHTSEY TWO’S 2ND RESUB LT 20
- Thirty 01 Hundred San Gabriel Condo
- Thirty 01 Street Condo Amd
- Thirty 02 Hundred Duval Condo
- Thirty 05 Hundred Enfield
- THIRTY 2 HUNDRED DUVAL CONDO
- THIRTY FIRST STREET CONDOMINIUMS
- Thirty First Street Condominiums Am
- Thomas Place
- Thomas Place Amd Of L
- Thornbury II Sec 2
- Thornbury II Sec 4
- Thornbury Ii Sec 5
- Thornbury Sec 01
- Thornton City Homes Condo
- Thornton Gardens
- Thornton Trails
- Thoroughbred Estates Ph 03
- Thoroughbred Ranchettes
- Three Thousand Guadalupe Place
- Three Thousand Guadalupe Place Condo
- Three Thousand Guadalupe Place Condominiums
- Tiermo
- Tierra Madrones
- Tiffany Condominiums
- Tigert
- Tillery Square Sub
- Tillery Street Villa Condos
- Timber Ridge At Greenbriar 02 Amd
- Timber Ridge At Greenbriar Sec
- Timber Village Amd
- Timberidge Square Condo Amd
- Timberlake Add
- Timberline 04
- Timberline Terrace Sec 03
- TIMBERLINE TERRACE SEC 3
- Timbers Condo
- Timberwood Sub
- TIMMERMANN
- Tobin & Johnson
- Tollgate Condo Amd
- Tom Green Condo Amd
- TOM GREEN CONDOMINIUMS AMEND
- Tonkawa Bluff City Homes Condo
- TOWERS OF TOWN LAKE CONDOMIN
- Towers Town Lake Condo Amd
- Town Lake Residences Condo
- Towne Court Condo Amd
- TOWNE PARK TOWNHOUSES
- Townhomes At Los Indios Condos Ph 07
- Townhomes At Riverside Grove
- Townhomes At Tuscan Village
- Townhomes Northwest Hills
- Townhomes/Los Indios Ph VI
- Towns On Cumberland Condominiu
- Townsley Martha 01 Resub
- Trace Condo Amd
- Trails
- TRAILS AT WILDHORSE
- Trails Ph 01B
- Trailwood Village 01/Travis Country
- Trailwood Village One At Travi
- Trailwood Village Two At Travi
- Trailwood Village Two At Travis Country
- Travesia
- TRAVESIA SUB
- Travis
- Travis Cooke Road Add 02
- Travis Country
- Travis Country Trailwood Village Two At Travi
- Travis Country West
- Travis Country West Sec 01
- Travis County
- Travis Green
- Travis Green Condo
- Travis Heights
- Travis Heights Amd
- Travis Heights Condominiums
- Travis Heights Terrace Condo Amd
- Travis Heights Terrace Condomi
- Travis Heights Terrace Condomium
- Travis Landing
- Travis Landing 02 Ph 01
- Travis Landing 02 Ph 03
- Travis Landing 02 Ph 05
- TRAVIS OAK TRAILS
- Travis Oaks Condo Amd
- Travis Oaks Condominiums Amended
- Travis Place
- Travis Southwest
- Treadwell Add Sec 01
- Treadwell Add Sec 03
- Treehouse Condo
- Treehouse Condominiums
- Treemont Ph A Sec 01
- Treemont Ph B Sec 05
- TREEMONT PHS B SEC 5
- Treetops
- Treetops West Sec 02
- Treetops West Sec 1
- TRIO AT MENCHACA CONDOMINIUMS
- Truman Heights
- Tumbleweed Estates
- Tumbleweed Trail Estates
- Tura Lane
- Turnberry at Avery Ranch
- Turnberry At Avery ranch Condo
- Turnberry At Avery Ranch Condominiums
- Turner’s Crossing
- Turtle Creek Estates Sec 01
- Turtle Rock Estates
- Twelve Oaks Condo Amd
- Twenty 03 Hundred Leon Condo
- Twentyone24 Condo Amd
- Twilight Condominiums at Goodnight Ranch
- Twin Mesa
- Tydings C
- Tyndall
- Tyndall At Robertson
- Tyndall at Robertson Hill
- Tyndall at Robertson Hill Condominiums
- Tyndall/Robertson Hill
- Tyndall/Robertson Hill Condos
- Ulit H Add 02
- Ulit H Resub
- Ulits H Sub Resub Of Lt 3 Bl
- Union park west
- UNION PARK WEST CONDOMINIUMS
- UNIT C BLDG 2 BOULDIN SQUARE
- UNIVERSITY HEIGHTS
- University Hills
- University Hills Sec 01
- University Hills Sec 02 Ph 03
- University Hills Sec 02 Ph 05
- University Hills Sec 03 Ph 01
- University Hills Sec 03 Ph 02
- University Hills Sec 03 Ph 03
- University Hills Sec 04 Ph 02
- University Hills Sec 04 Ph 04
- University Hills Village
- University Hills West
- University Park
- University Park in French Place
- UNT 2603 70 RAINEY RESIDENCES CONDOMINIUMS PLUS 0.
- Uplands Ph 02
- UT area West Campus
- UT area west compus
- Vail Sec 2
- Valley View Acres Rev
- Valley View Enclave Condominiu
- Valley View Estates
- Valley View Park
- Valley View Park Amd
- Valley View Road Condo
- Valley View Village Condo
- VALLEY VIEW VILLAGE CONDOMIN
- Valley View Villas
- Valleyridge
- VALLEYSIDE PLACE CONDOMINIUM
- Vance Park
- Vanderbilt Condo Amd
- Vaught Ranch Sec 2
- Ventana Condo Amd
- Verandas At Uptown Condo
- Verandas At Uptown Condominiums
- Verandas On Berkman Condominiu
- Verandas On Berkman Condominium
- Verdance Condo
- Verrado
- Versante Canyon Homes Condo
- Vesper
- Vesper Condo
- VESPER Zoppp Add
- Victoria G Lena Condo Bldg 14
- Victoria Glen
- Victoria Glen Amd
- Victoria Square Condo
- Victory Hill Condo
- Viewpoint At Williamson Creek
- Viewpoint At Williamson Creek Ph 01
- Viewpoint Condo
- Viewpoint Condominiums
- Villa Govalle
- Villa Suena Sec 01
- Village 01 Anderson Hill
- Village 01 At Anderson Mill
- Village 02 At Anderson Mill
- Village 06 At Anderson Mill
- Village 09 At Anderson Mill
- Village 12 At Anderson Mill
- Village 13 At Anderson Mill
- Village 14 At Anderson Mill
- Village 15a At Anderson Mill
- Village 16 Anderson Mill
- Village 16 at Anderson Mill
- Village 16/Anderson Mill
- Village 17 At Anderson Mill Ph 02
- Village 18 Anderson Mill Ph 02
- Village 19 At Anderson Mill Ph 02
- Village 2 At Anderson Mill
- Village 20 At Anderson Mill Ph 02
- Village 21 At Anderson Mill Ph 02
- Village 22 At Anderson Mill Ph 02
- Village At Kinney Court
- Village At Ledge Stone
- Village At Ledge Stone Condo
- Village At Pleasant Valley Sec
- Village At Quail Creek
- Village At Quail Creek Sec 02
- Village At Walnut Creek
- Village At Walnut Creek Ph 01 Sec 01 Amd
- Village At Walnut Creek Ph 02 Sec 10 Ame
- Village At Walnut Creek Ph 02 Sec 18
- Village At Walnut Creek Ph 1
- Village At Walnut Creek Ph 2
- Village At Walnut Creek Phs 2 Sec 13
- Village at Wells Branch
- Village at Wells Branch Residential Condominiums
- Village At Western Oaks
- Village At Western Oaks 06
- Village At Western Oaks 07
- Village At Western Oaks 08
- Village At Western Oaks 09
- VILLAGE AT WESTERN OAKS SEC
- Village At Western Oaks Sec 01
- Village At Western Oaks Sec 02
- Village At Western Oaks Sec 03
- Village At Western Oaks Sec 11
- Village At Western Oaks Sec 12
- Village At Western Oaks Sec 13
- Village At Western Oaks Sec 14
- Village At Western Oaks Sec 15
- Village At Western Oaks Sec 16
- Village At Western Oaks Sec 16-A
- Village At Western Oaks Sec 18-A
- Village At Western Oaks Sec 33
- Village Oak West
- Village Oaks Sec 1
- Village Oaks Sec 2
- village of walnut creek
- Village On Congress Condo Amd
- VILLAGE ON CONGRESS CONDOMINIUMS
- Village on Cooper Lane
- Village Park 3 At Travis Count
- Village Park 3 At Travis Country
- Village Park 4 At Travis Count
- Village Park 7 At Travis Country
- Village San Leanna Add 02
- Village Sec 01
- Village Sec 03
- Village Sec 04
- Village Sec 05
- Village Sec 06
- Village Sec 07
- Village Sec 7 The
- Village South Ph 02
- Village South Ph 04-A Sec 02
- Village South Ph 1
- Village South Phs 02
- Village Square
- Village/Cooper Lane Condos
- Village/Western Oaks Sec 16-C
- Villas @ Treemont
- Villas Anderson Mill Condos Unit 1054A Bl
- Villas At 05 & Allen Condo Ph
- Villas At 707 Condo
- Villas At Canyon Creek Condo
- Villas At Commanders Point Con
- Villas At Commanders Point Condo
- VILLAS AT COMMANDERS POINT CONDOMINIUMS S
- Villas At Davenport Ranch Amd
- Villas At Flintrock Sec 2 Condo
- Villas At Holton Woods Condomi
- Villas At River Place
- Villas At The Hills, Lakeway
- Villas At Treemont Amd
- Villas At Tuscan Village Amd
- Villas Coronado Hills – Rev 1995
- Villas Coronado Hills Rev 1995
- Villas Lost Canyon Condo Amd
- Villas On Lake Travis
- Villas on Travis
- Villas On Travis Condo Amd
- VILLAS ON TRAVIS CONDOMINIUM
- Villas On Walnut Creek
- Villas Travis Heights Condo
- Villas/Amarra Drive Condos
- Villas/Mansell
- Villas/Rough Hollow South Shor
- Vineyard at Rough Hollow
- VINEYARD AT ROUGH HOLLOW CONDOMINIUMS
- Vineyard Bay Ph 01
- Vintage Hills
- Vintage Hills Sec 04
- Vintage Hills Sec 07
- VINTAGE HILLS SEC 6
- VINTAGE HILLS SEC 7
- Violet Crown Heights Sec 01
- Violet Crown Heights Sec 02
- Violet Crown Heights Sec 02 Resub
- Violet Crown Heights Sec 1
- Violet Crown Heights Sec 2 Residence
- Vista
- Vista Alegre 02
- Vista Bus Park Sec 01
- Vista Grande
- Vista Grande Condo
- Vista Grande Sec 02
- Vista Hills Condo
- Vista Point
- Vista Point Springfield
- Vista Ridge Ph 02
- Vista Ridge Ph 04
- Vista West 01
- Vista West 04
- Vista West 05
- Vistas at Lakeway
- Vistas At Lakeway Condo
- Vistas of Austin
- Vistas/Austin Sec 2
- Vistas/Austin Sec 5
- VUE at 2222
- W 10th Condo
- W A Harper
- W Brown Sur 1
- W C I D 17 03
- W35
- Wagon Crossing Sec 01
- Wagon Crossing Sec 02
- Wagon Crossing Sec 03-A Amd
- Wagon Crossing Sec 5
- Waldron
- Walker Wilson A-27
- Wallace J P
- Wallace JP
- Walling Place
- Wallingwood Sec 02-A
- Walnut Creek Enclave
- Walnut Crossing Sec 01
- Walnut Crossing Sec 02
- Walnut Crossing Sec 04
- Walnut Crossing Sec 05-A
- Walnut Forest
- Walnut Hills Sec 02
- Walnut Hills Sec 05
- Walnut Place Sec 02
- Walnut Place Sec 03
- Walnut Place Sec 04
- Walnut Ridge 01
- Walnut Ridge 02
- WALNUT RIDGE II
- Walsh 360
- WALSH 360 Townhomes
- Walsh 360 Twnhms
- Walsh Place Div A Amd
- WALTON
- Ward & Treadwell
- Ward Add
- Warlick Sub
- Washington
- Waterfall On Lake Travis Condo
- Waterford Condo Amd
- Waterford Condominiums The Amended
- Waterford Place Sec 02 Amd
- Waterfront Condominium The
- Waterloo
- Waterloo Condo
- Watersmark At Barton Creek Con
- Waterstone Crossing
- Waterstreet Lofts
- Watson
- Wedgewood Condo
- Wedgewood Condominiums
- Wedgewood Sec 01
- Weise
- Welch
- WELCH SUBD
- Wells Branch
- Wells Branch Ph 10 Sec 03
- Wells Branch Ph A Sec 01
- Wells Branch Ph A Sec 02
- Wells Branch Ph B Sec 02
- Wells Branch Ph B Sec 03
- Wells Branch Ph C Sec 01
- Wells Branch Ph C Sec 02
- Wells Branch Ph C Sec 03
- Wells Branch Ph C Sec 04
- Wells Branch Ph D Sec 01
- Wells Branch Ph D Sec 02
- Wells Branch Ph E Sec 01
- Wells Branch Ph E Sec 02
- Wells Branch Ph E Sec 03
- Wells Branch Ph F
- Wells Branch Ph R Sec 03
- Wells Branch Ph W-2A
- WELLS BRANCH PHS A SEC 3
- Wells Branch Phs C Sec 3
- Wells Branch Phs X Sec 3
- Wellspoint
- Wendel Cove Condo
- Wendel Cv
- Wendlandt & Mueller
- Wendlandt & Staehely Resub
- West 10 Street Condo Amd
- West 35th Street Condo
- West Austin Tanglewood Condo
- West Ave Condominiumsamended
- West Branch
- West Campus
- West Campus Cottages Condo The
- West Cave Estates Sec 04
- West Condo 904
- West End Add
- West End Condo Amd
- West End Heights
- West Gate Square
- West Gate West
- West Harbour Marina Condos
- West Hearn St. Square
- West Live Oak & South 2nd Condo
- West North Loop 200
- West Oak Condo Amd
- West Park Add
- West Park Amd
- West Rim
- West University Place Condo
- West University Place Condominiums
- West View Heights
- Westcliff Condo Ph 02 Amd
- Westcliff Sec 01-A
- Westcreek
- Westcreek Ph 03 Sec 01
- Westcreek Ph 03 Sec 02
- Westcreek Ph 03 Sec 03
- Westcreek Ph 03 Sec 04
- Westcreek Ph 03 Sec 05
- Westcreek Ph 04
- Westcreek Sec 01 Amd
- Westcreek Sec 02
- Westcreek Sec 07 Ph 01
- Westcreek Sec 10 Ph A
- Westcreek Sec 10 Ph B
- Westcreek Section 10
- Westenfield 01
- Western Clstrs Condo- Pearson Place cottages
- Western Clstrs Condos
- Western Hills At Cherry Creek
- Western Oaks
- Western Oaks 03-C
- Western Rdg Estates 11-B
- Western Ridge Estates
- Western Trails Estates
- Western Trails Medical Center
- Western Trails Medical Clinic
- Western Trails Of Quail Creek
- Western Trails Of Quail Creeks
- Western Trails Place Ph 01
- Western Trails Sec 01
- Western Trails Sec 02
- Western Trails Sec 05
- Western Trails Sec 06
- Western Trails Sec 08
- WESTFIELD A
- Westfield Condo
- Westfield Plaza Condo Amd
- westgate
- Westgate Condo Amd
- Westgate Grove Condo
- Westgate Tower
- Westhill Estates Sec 02
- WESTHILL ESTATES SEC II
- Westlake Condo
- Westlake Condos
- Westlake Crossroads
- Westlake Heights Subd
- Westlake Highlands
- Westlake Highlands Sec 02
- Westlake Highlands Sec 03
- Westlake Highlands Sec 07
- Westlake Highlands Sec 7
- Westlake Madrones Sec 02
- Westlake Oaks
- Westline
- Westline Austin
- Westminster Glen
- Westminster Glen Ph 01
- Westminster Glen Ph 01-B
- Westminster Glen Ph 01-D
- Westminster Glen Ph 03
- Westover
- Westover Hills
- Westover Hills Club Estates
- Westover Hills Sec 01
- Westover Hills Sec 02
- Westover Hills Sec 03 Ph 02
- Westover Hills Sec 03 Ph 03
- Westover Hills Sec 3 Phs 2
- Westplace Condo
- Westplace Condominiums The
- Westridge Estates
- Westshore
- Westside Drive Condo
- Westside Landing / Rough Hollow
- Westslope Condo
- Westview Condo
- Westview Estates Sec 02
- Westview Estates Sec 03
- Westview on Lake Austin
- Westview On Lake Austin Ph A
- Westview On Lake Austin Ph B
- Westview On Lake Austin Ph C
- Westwood Condo
- Westwood Sec 02
- Westwood Sec 03
- Westwood Sec 04
- Westwood Sec 05
- Wheeler Creek Village
- Whilloite
- Whispering Oaks
- Whispering Oaks 01
- Whispering Oaks 03
- Whispering Oaks 04
- WHISPERING OAKS III
- Whispering Oaks Ph 01
- Whispering Oaks Sub Ph Two
- White Plains Sec 02
- White Plains Sec 03
- White Plains Sec 3 Resub Of Lo
- White Rock At Bullard Condo
- Whitis
- Whitis Subd
- Whitney Oaks Condo Amd
- Wild Basin Ledge Amd
- Wild Cat Hollow
- Wild Cat Hollow Sub
- Wildcat Hollow
- Wilder Add
- Wildhorse Ranch
- Wilkerson Estates
- Willa
- Willbert Add
- WILLHOITE SUBD
- William Wofford Surv #40 Abs #
- Williamsburg Pud Ph 1-B
- WILLIAMSON ADDN SEC 2 & RESU
- WILLIAMSON CREEK
- Williamson Creek Sec 01-A
- Williamson Creek Sec 02
- WILLIAMSON CREEK SUBD SEC 2
- Williamson Sec 02
- Williamson Sec 03
- Willow Branch Lofts
- Willow Brook
- Willow Creek
- Willow Run Sec 01
- Willow Run Sec 04
- Willow Run Sec 06
- Willow Run Sec 07
- Willow Run Sec 08
- WILLOW RUN SEC 10 A
- Willow Run Sec 10-A
- Willow Run Sec 10-B
- Willow Spgs Sec 01
- Willow Trace
- Willow Trace / Timmermann
- Willowbrook North Twnhms
- Willowbrook Place Condo
- Wilshire Park
- Wilson S I
- Wilson W
- Wilson W E
- Winchester Condo
- WINCHESTER CONDOMINIUMS THE
- Winchester Condos
- Windfield Condominiums
- Windmill Bluff Estates
- Windmill Run
- Windmill Run Sec 01
- Windmill Run Sec 02-A
- Windmill Run Sec 03-A
- Windmill Run Sec 03-D
- Windmill Run Sec 04-A
- WINDMILL RUN SEC 1
- Windridge Sec 01
- Windridge Sec 1
- Windrock Condo Amd
- Windsor
- Windsor Hills Sec 01
- Windsor Hills Sec 03
- Windsor Hills Sec 04
- Windsor Hills Sec 05
- Windsor Hills Sec 07
- Windsor Oaks Condo Amd
- Windsor Park
- Windsor Park 02 Sec 01
- Windsor Park 02 Sec 02
- Windsor Park 02 Sec 03
- Windsor Park 02 Sec 04
- Windsor Park 03 Sec 02
- Windsor Park 03 Sec 03
- Windsor Park Hills Sec 01
- Windsor Park Hills Sec 03
- Windsor Park Hills Sec 04
- Windsor Park Hills Sec 06
- Windsor Park Hills Sec 07
- Windsor Park Sec 01
- Windsor Park Sec 02
- Windsor Park Sec 03
- Windsor Park Sec 04
- Windsor Road Forest Trail Condo A
- Windsor Village
- Windtree Condo Amd
- Windy Cove
- Windy Trails
- Winflo Park Condo
- Winners Circle
- WOFFORD
- WOFFORD W
- Wood Harbour Inc Amd
- Woodcliff Amd
- Woodcrest-A
- Woodgreen Acres
- Woodhaven
- Woodhaven 02
- WOODHAVEN II
- WOODHUE HEIGHTS I
- Woodlake Trails
- Woodland
- Woodland Bills Sec 3
- Woodland Estates Sec 1
- Woodland Oaks
- Woodland Oaks Sec 01a
- Woodland Park
- Woodland Village
- Woodland Village Anderson Mill Sec 01 Blk
- Woodland Village Anderson Mill Sec 02 Ph 01
- Woodland Village Anderson Mill Sec 02 Ph 02
- Woodland Village Anderson Mill Sec 04 Blk
- Woodland Village Of Anderson Mill S
- Woodlands 02 Condo
- Woodlands II Condo
- Woodlands II Cono
- Woodlands Sec 01
- Woodlands Sec 01 The
- Woodlands Sec 02 The Rep
- Woodlands Sec 03 The
- Woodlands Sec 04 The
- Woodlands Sec 05 The
- Woodlands Sec 06
- Woodlands Sec 6
- Woodlawn Add
- Woodlawn Court Condo
- Woodlawn West Condo Amd
- Woodmere Condo
- Woodrow North Condo
- Woodrow Square Condo Amd
- Woods Brushy Creek
- Woods Brushy Creek Sec 01
- Woods Brushy Creek Sec 01 Amd
- Woods Brushy Creek Sec 02 Ph 01-B
- Woods Brushy Creek Sec 02 Ph 01-C
- Woods Brushy Creek Sec 02 Ph 02
- Woods Brushy Creek Sec 02 Ph 02 Amd
- Woods Brushy Creek Sec 02 Ph 04
- Woods Brushy Creek Sec 06 Ph 02
- Woods Brushy Creek Sec 06 Ph 03
- Woods Brushy Creek Sec 07
- Woods Brushy Crk Ph I
- Woods Century Park Sec 01
- Woods Century Park Sec 02
- Woods Knoll Add
- Woods Lake Travis Sec 02
- Woods Legend Oaks Sec 01
- Woods Of Brushy Creek Sec 2 Ph 3a
- Woods Of Greenshores
- Woods Of Greenshores Sec 01
- Woods of Legend Oaks
- Woods Travis Country Condo
- Woods Travis Country Condo Ame
- Woods Westlake
- Woods Westlake Heights
- Woods Westlake Hilltop
- Woods Westlake Hilltop 02
- Woodstone Square
- Woodstone Village Sec 01
- Woodstone Village Sec 02
- Woodstone Village Sec 04
- Woodstone Village Sec 05-A
- Woodstone Village Sec 06
- Woodstone Village Sec 07
- WOODSTONE VILLAGE SEC 7
- WOODSTONE VILLAGE SEC 8
- Woodstone Village Sec Ii
- WOODSTONE VILLAGE SEC IV
- Woodward Indust District
- Woodward Industrial District
- Wooten
- Wooten Goodall
- wooten park
- Wooten Park Sec 02
- Wooten Park Sec 03
- Wooten Park Sec 04
- Wooten Park Sec 05
- Wooten Park Sec 2
- Wooten Park Square
- Wooten Terrace Sec 01
- Wooten Terrace Sec 01-B
- Wooten Terrace Sec 02
- Wooten Terrace Sec 03
- WOOTEN TERRACE SEC 3
- Wooten Village
- Wooten Village Sec 01
- Wooten Village Sec 03
- Wooten Village Sec 04
- Wooten Village Sec 05
- Wooten Village Sec 06
- Wooten Village Sec 3
- Worley Add Sec 02
- Wright Beatrice Subd
- Wt Jolly Surv #54 Abs # 2339
- Wyldwood
- WYLDWOOD PLACE CONDOMINIUMS
- Wyldwood Sec 01
- Wynn Wood Condo
- Wynnrock Estates Sec 01
- Xspace Condos
- Y
- Y7s4c-Y7s4c
- Yarrabee Bend South Sec 01
- Yaupon Ck Sec 1 Am Lt 13&15 Bl
- Yaupon Terrace Sec 02
- Zachary Scott Sec 01
- Zachary Scott Sec 02
- Zilker
- Zilker Condo Amd
- Zilker Flats
- Zilker Hilltop Add
- Zilker Park
- Zilker Park Condominiums
- Zilker park residences, zilkr on the park condomin
- Zilker Place Condominiums
- Zilkr on the Park
- Zilkr on the Park Condominium
- Zilkr on the Park Condominiums
- Zilkr/Pk Condos
- Ziller Add
- Zoppp Add
Market Summary
Current real estate data for Commercial in Austin as of Oct 30, 2025
224
Commercial Listed
265
Avg DOM
889
Avg $ / SqFt
$1,735,548
Avg List Price
Property Summary
- Located in the Division A subdivision, 3228 E 5th ST Austin TX is a Commercial for sale in Austin, TX, 78702. It is listed for $2,495,000 To schedule a showing of MLS#9355014 at 3228 E 5th ST in Austin, TX, contact your Stripe Realty agent at 512-439-2122.
Similar Listings Nearby

3228 E 5th ST
Austin, TX

























